Villa en venta en Finestrat zona Campana Garden
Datos básicos
- NB-86885
- 1.350.000 € (antes 1.400.000 €)
- 486 m2(2.778 €/m2)
- Alicante
- Finestrat
- Campana Garden
Distribución e instalaciones
- 4
- 5
Varios
- Sí
Certificado energético
Detalles
1.350.000 € 1.400.000 €
VILLAS DE LUJO DE OBRA NUEVA EN FINESTRAT CON VISTAS AL MAR
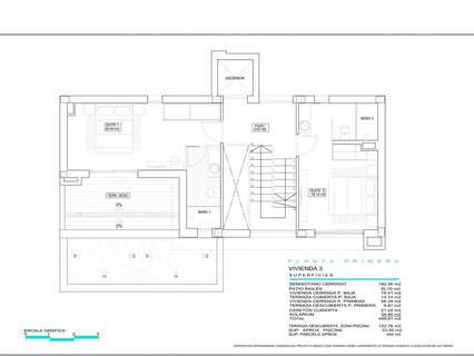
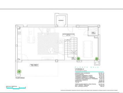
Villas de lujo ubicadas en complejo residencial Obra Nueva en Finestrat. Estas villas constan de dos plantas, solárium, sótano y jardín interior con piscina privada.
Cada villa tiene su propio ascensor.
El solárium ofrece una vista amplia e inolvidable de Benidorm y el mar.
Estas villas son únicas por su diseño y comodidades: una gran sala de estar, amplios dormitorios en suite en el primer piso, un solárium para relajarse y disfrutar de los atardeceres, una piscina infinita contemporánea y una gran terraza para vacaciones y relajación.
Residencial situado a 5 min en coche de todos los servicios que ofrece Benidorm y en un entorno con una temperatura media anual de 20ºC y 300 días de sol al año, a 44 km del aeropuerto de Alicante, a 3 km del mar y a 200 metros del golf.
- 17/12/2025
- 486 m2
- 2.777,78 €/m2
- 3.6%
- 4
- 5
Buy in Spain
Contactar
Compartir
Tu opinión
























