Villa en venta en Finestrat zona Finestrat
Datos básicos
- SP-23979
- 1.145.000 €
- 154 m2(7.435 €/m2)
- Alicante
- Finestrat
- Finestrat
Distribución e instalaciones
- 3
- 3
Varios
- Sí
Certificado energético
- B
Detalles
1.145.000 €
VILLAS DE OBRA NUEVA EN FINESTRAT
Residencial de obra nueva de villas modernas situado en Sierra Cortina, Finestrat.
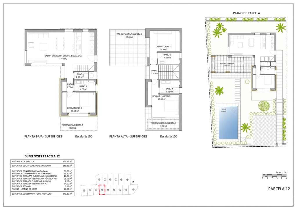
Villas de nueva construcción de estilo moderno con 3 dormitorios, 3 baños, cocina abierta, amplio salón con acceso a la terraza, jardín privado con la piscina y plaza de aparcamiento.
Las villas tienen una gran terraza con vistas al mar y a la montaña.
Residencial situado a 5 min en coche de todos los servicios que puede ofrecer Benidorm y en un entorno con una temperatura media anual de 20ºC y 300 días de sol al año, a 44 km del aeropuerto de Alicante, a 3 km del mar y a 200 metros del golf.
- hace 10 días
- 154 m2
- 7.435,06 €/m2
- 3
- 3
Global Spain
Contactar
Compartir
Tu opinión














