Villa en venta en Finestrat zona Golf Bahia
Datos básicos
- NB-85603
- 849.000 €
- 255 m2(3.329 €/m2)
- Alicante
- Finestrat
- Golf Bahia
Distribución e instalaciones
- 4
- 4
Varios
- Sí
Certificado energético
Detalles
849.000 €
Villas de lujo de nueva construcción en Finestrat, cerca de Benidorm
Colección exclusiva de villas independientes sostenibles
Esta prestigiosa promoción cuenta con 36 villas independientes en la codiciada urbanización Bahía Golf, en Finestrat, a solo 3,5 km de la costa mediterránea. Diseñadas para combinar lujo, comodidad y sostenibilidad, estas modernas viviendas ofrecen un estilo de vida excepcional en la Costa Blanca, rodeadas de naturaleza pero cerca de todos los servicios.
Cada villa cuenta con 3 o 4 amplios dormitorios, jardines privados y una piscina infinita privada. Algunas viviendas disfrutan de impresionantes vistas al mar, mientras que todas ellas se encuentran en generosas parcelas de más de 500 m2 con superficies construidas a partir de 222 m2.
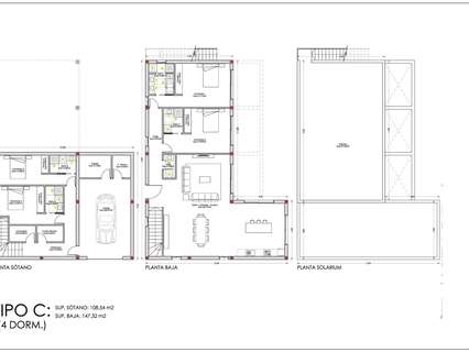
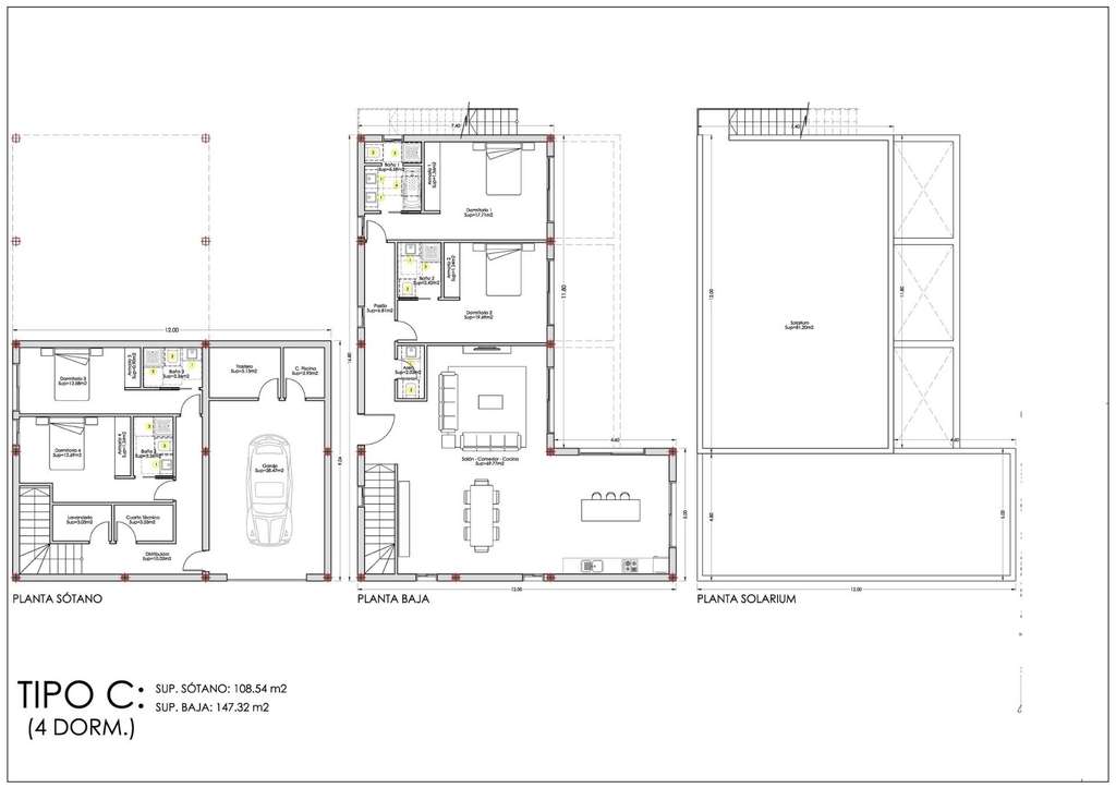
Distribuciones flexibles con sótano y solárium en la azotea
Los compradores pueden elegir entre cuatro distribuciones diferentes, todas ellas cuidadosamente diseñadas para maximizar el espacio y la luz natural. Todas las villas incluyen un sótano con aparcamiento privado, trastero, lavadero y dos dormitorios con baños en suite conectados a un patio inglés para aprovechar la luz natural y la ventilación.
La planta baja cuenta con uno o dos dormitorios adicionales con baño en suite, un aseo de invitados y una cocina abierta conectada al salón y al comedor, con acceso directo a la terraza y la piscina. Cada propiedad cuenta con un solárium en la azotea, que ofrece vistas panorámicas a la montaña o al mar y la opción de instalar un jacuzzi.
Acabados de alta calidad y eficiencia energética BREEAM
Estas villas están construidas según los estándares de certificación BREEAM, lo que garantiza un excelente rendimiento energético y responsabilidad medioambiental. Las especificaciones premium incluyen:
Ventanas de aluminio de doble acristalamiento con rotura de puente térmico y persianas eléctricas
Aire acondicionado por conductos totalmente instalado
Puerta de acceso motorizada para vehículos
Piscina privada y jardín paisajístico
Cocina moderna de PORCELANOSA equipada con electrodomésticos
Baños de diseño con muebles, espejos y duchas a ras de suelo
Gres porcelánico de PORCELANOSA
Ubicación privilegiada cerca de playas, golf y tiendas
Finestrat es una encantadora localidad situada entre las montañas y el mar, que ofrece tranquilidad a pocos minutos de la animada Benidorm. La zona combina la belleza natural con excelentes infraestructuras, colegios internacionales, restaurantes y centros comerciales.
Distancias a puntos de interés clave
Playas de Benidorm 3,5 km
Centro comercial La Marina 1 km
Puig Campana Golf 3 km
Casco antiguo de Benidorm 4 km
Aeropuerto de Alicante 55 km
Acceso a la autopista A7 2 km
Viva el sueño mediterráneo en Finestrat
Estas villas ofrecen el equilibrio perfecto entre lujo, naturaleza y conectividad en la Costa Blanca. Póngase en contacto con nosotros hoy mismo para recibir más información o concertar una visita privada a estas excepcionales viviendas de nueva construcción en Finestrat.
- 18/02/2026
- 255 m2
- 3.329,41 €/m2
- 4
- 4
Buy in Spain
Contactar
Compartir
Tu opinión

























