Villa en venta en Finestrat zona Golf Bahia
Datos básicos
- NBZH-76072
- 849.000 €
- 255 m2(3.329 €/m2)
- Alicante
- Finestrat
- Golf Bahia
Distribución e instalaciones
- 4
- 4
Varios
- Sí
Certificado energético
Detalles
849.000 €
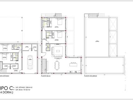
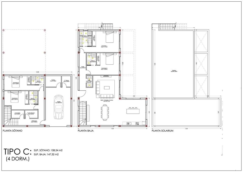
Villas de lujo de nueva construcción en Finestrat, cerca de Benidorm #13; #13;Colección exclusiva de villas independientes sostenibles #13;Esta prestigiosa promoción cuenta con 36 villas independientes en la codiciada urbanización Bahía Golf, en Finestrat, a solo 3,5 km de la costa mediterránea. Diseñadas para combinar lujo, comodidad y sostenibilidad, estas modernas viviendas ofrecen un estilo de vida excepcional en la Costa Blanca, rodeadas de naturaleza pero cerca de todos los servicios. #13; #13;Cada villa cuenta con 3 o 4 amplios dormitorios, jardines privados y una piscina infinita privada. Algunas viviendas disfrutan de impresionantes vistas al mar, mientras que todas ellas se encuentran en generosas parcelas de más de 500 m2 con superficies construidas a partir de 222 m2. #13; #13;Distribuciones flexibles con sótano y solárium en la azotea #13;Los compradores pueden elegir entre cuatro distribuciones diferentes, todas ellas cuidadosamente diseñadas para maximizar el espacio y la luz natural. Todas las villas incluyen un sótano con aparcamiento privado, trastero, lavadero y dos dormitorios con baños en suite conectados a un patio inglés para aprovechar la luz natural y la ventilación. #13; #13;La planta baja cuenta con uno o dos dormitorios adicionales con baño en suite, un aseo de invitados y una cocina abierta conectada al salón y al comedor, con acceso directo a la terraza y la piscina. Cada propiedad cuenta con un solárium en la azotea, que ofrece vistas panorámicas a la montaña o al mar y la opción de instalar un jacuzzi. #13; #13;Acabados de alta calidad y eficiencia energética BREEAM #13;Estas villas están construidas según los estándares de certificación BREEAM, lo que garantiza un excelente rendimiento energético y responsabilidad medioambiental. Las especificaciones premium incluyen: #13; #13;Ventanas de aluminio de doble acristalamiento con rotura de puente térmico y persianas eléctricas #13;Aire acondicionado por conductos totalmente instalado #13;Puerta de acceso motorizada para vehículos #13;Piscina privada y jardín paisajístico #13;Cocina moderna de PORCELANOSA equipada con electrodomésticos #13;Baños de diseño con muebles, espejos y duchas a ras de suelo #13;Gres porcelánico de PORCELANOSA #13; #13;Ubicación privilegiada cerca de playas, golf y tiendas #13;Finestrat es una encantadora localidad situada entre las montañas y el mar, que ofrece tranquilidad a pocos minutos de la animada Benidorm. La zona combina la belleza natural con excelentes infraestructuras, colegios internacionales, restaurantes y centros comerciales. #13; #13;Distancias a puntos de interés clave #13;Playas de Benidorm 3,5 km #13;Centro comercial La Marina 1 km #13;Puig Campana Golf 3 km #13;Casco antiguo de Benidorm 4 km #13;Aeropuerto de Alicante 55 km #13;Acceso a la autopista A7 2 km #13; #13;Viva el sueño mediterráneo en Finestrat #13;Estas villas ofrecen el equilibrio perfecto entre lujo, naturaleza y conectividad en la Costa Blanca. Póngase en contacto con nosotros hoy mismo para recibir más información o concertar una visita privada a estas excepcionales viviendas de nueva construcción en Finestrat. #13; #13; #13;456
- 19/02/2026
- 255 m2
- 3.329,41 €/m2
- 4
- 4
Zebra Homes
Contactar
Compartir
Tu opinión

























