Villa en venta en Finestrat zona Finestrat
Datos básicos
- SP-76344
- 790.000 €
- 230 m2(3.435 €/m2)
- Alicante
- Finestrat
- Finestrat
Distribución e instalaciones
- 3
- 2
Varios
- Sí
Certificado energético
- B
Detalles
790.000 €
VILLAS DE OBRA NUEVA EN FINESTRAT
Residencial de obra nueva de 9 villas en Finestrat, en Sierra Cortina - una de las mejores urbanizaciones de la Costa Blanca.
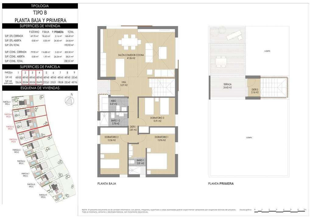
Residencial consta de 4 tipos diferentes de viviendas adaptadas a las necesidades de los clientes. Algunos de los modelos vienen construidos en 1 o 2 plantas, con sótano, solarium.
Todas las villas tienen 3 dormitorios, 2 o 3 baños, cocina americana con salón, armarios empotrados, aire acondicionado y aerotermia, cocina equipada, jardín privado con piscina y parking.
Residencial ubicado en el complejo turístico Sierra Cortina, junto a dos campos de golf, parques temáticos, un gran centro comercial y a escasos minutos de las playas de Benidorm.
Finestrat ubicado en la comarca de la Marina Baixa de la Costa Blanca, cerca de la vecina Benidorm y a unos 40 kilómetros de la ciudad de Alicante y del aeropuerto internacional.
El pueblo está situado en la ladera de la montaña de Puig Campana y ofrece hermosas vistas de la montaña, la costa y el mar Mediterráneo.
- hace 5 días
- 230 m2
- 3.434,78 €/m2
- 3
- 2
Global Spain
Contactar
Compartir
Tu opinión














