Villa en venta en Hondón de las Nieves zona Centro
Datos básicos
- PS-46548
- 357.250 €
- 230 m2(1.553 €/m2)
- Alicante
- Hondón de las Nieves
- Centro
Distribución e instalaciones
- 3
- 3
Varios
- Sí
Certificado energético
- B
Detalles
357.250 €
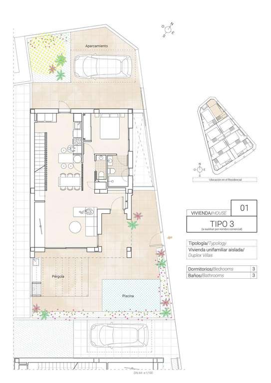
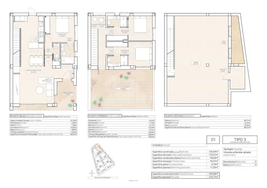
VILLA DE OBRA NUEVA EN HONDON DE LAS NIEVES
Moderna villa de obra nueva en Hondon de las Nieves.
Villas compuestas en dos plantas y sótano con patio inglés, dispone de 3 dormitorios, 3 baños, aseo de invitados, cocina americana con el salón, armarios empotrados, terraza y solarium privado.
Las amplias parcelas disponen de jardín privado con piscina, zona de barbacoa y posibilidad de añadir una plaza de aparcamiento.
Hondón de las Nieves es un municipio de la Comunidad Valenciana, España.
Está situado en el suroeste de la provincia de Alicante, en la comarca del Vinalopó Medio.
Las playas y el aeropuerto de Alicante están muy cerca, a sólo 30 minutos en coche.
- hace 5 horas
- 230 m2
- 1.553,26 €/m2
- 3
- 3
Global Spain
Contactar
Compartir
Tu opinión









