Villa en venta en Jacarilla zona Vistabella
Datos básicos
- SP-32590
- 495.000 €
- 136 m2(3.640 €/m2)
- Alicante
- Jacarilla
- Vistabella
Distribución e instalaciones
- 3
- 2
Varios
- Sí
Certificado energético
- B
Detalles
495.000 €
Villa de nueva construcción con piscina privada en Vistabella, Jacarilla
Exclusiva villa de nueva construcción en un entorno natural y de golf
Esta villa de nueva construcción, bajo régimen de autopromoción, se encuentra en la tranquila zona de Vistabella, dentro del municipio de Jacarilla. Situada en un entorno natural entre el campo de golf de Vistabella y el embalse de La Pedrera, esta propiedad ofrece privacidad, vistas abiertas y un relajado estilo de vida mediterráneo. La zona es ideal para quienes buscan tranquilidad sin alejarse de la costa, los campos de golf y los servicios cotidianos.
Vistabella es una conocida zona residencial muy popular entre los compradores internacionales gracias a su campo de golf, sus restaurantes locales y su proximidad a Orihuela Costa y Torrevieja. Jacarilla conserva su encanto tradicional español y ofrece tiendas locales, servicios y un ambiente acogedor durante todo el año.
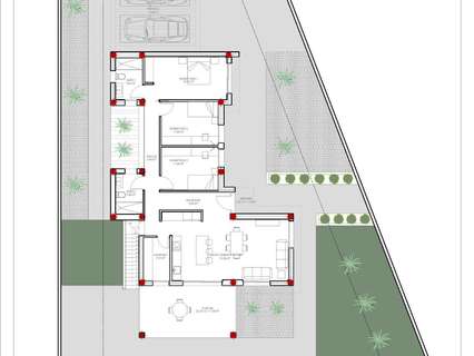
Moderna distribución en una sola planta con amplias zonas exteriores
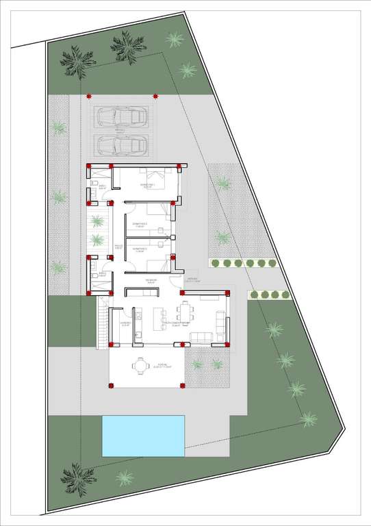
La villa se distribuye en una sola planta y ha sido diseñada para combinar comodidad, funcionalidad y luz natural. Ofrece 3 dormitorios y 2 baños, incluido un dormitorio principal con baño en suite. La sala de estar y el comedor de planta abierta conectan a la perfección con la moderna cocina, creando un espacio luminoso y acogedor.
Una terraza cubierta de 22 m² proporciona acceso directo al jardín privado, donde una piscina privada y zonas ajardinadas invitan a disfrutar del estilo de vida al aire libre. La generosa parcela de 750 m² también incluye una plaza de aparcamiento para dos vehículos.
Solárium privado con vistas abiertas
Uno de los aspectos más destacados de esta villa es el impresionante solárium privado de 120 m², al que se accede a través de una escalera exterior. Desde aquí se puede disfrutar de vistas panorámicas abiertas del campo circundante, perfectas para tomar el sol, entretenerse o relajarse durante todo el año.
Especificaciones de calidad y características de eficiencia energética
La villa está construida con materiales de calidad y especificaciones modernas para garantizar el confort y la eficiencia. Entre sus características se incluyen una puerta de entrada de seguridad reforzada, un sistema aerotérmico para el agua caliente sanitaria, persianas eléctricas en el salón y los dormitorios, y preinstalación de aire acondicionado por conductos. Estos elementos proporcionan una base ideal para una vivienda cómoda y energéticamente eficiente.
Excelente ubicación cerca del golf, la naturaleza y la costa
Vistabella Golf se encuentra a unos 2 km, mientras que el embalse de La Pedrera está a solo 1,5 km de la propiedad, ideal para los amantes de la naturaleza y las actividades al aire libre. Las playas de Orihuela Costa están a unos 15 km. El aeropuerto internacional de Alicante está a unos 55 km, lo que ofrece fáciles conexiones con los principales destinos europeos. En un radio de 10 a 15 km se pueden encontrar varios campos de golf y zonas comerciales adicionales.
Una oportunidad única en la Costa Blanca
Esta villa de nueva construcción en Vistabella es perfecta como residencia permanente, casa de vacaciones o oportunidad de inversión en una ubicación muy solicitada. Póngase en contacto con nosotros hoy mismo para recibir más información y asegurarse su nueva vivienda en el corazón de la Costa Blanca.
- hace 4 días
- 136 m2
- 3.639,71 €/m2
- 3
- 2
Global Spain
Contactar
Compartir
Tu opinión








