Villa en venta en Jávea/Xàbia
Datos básicos
- NBZH-22479
- 2.250.000 €
- 300 m2(7.500 €/m2)
- Alicante
- Jávea/Xàbia
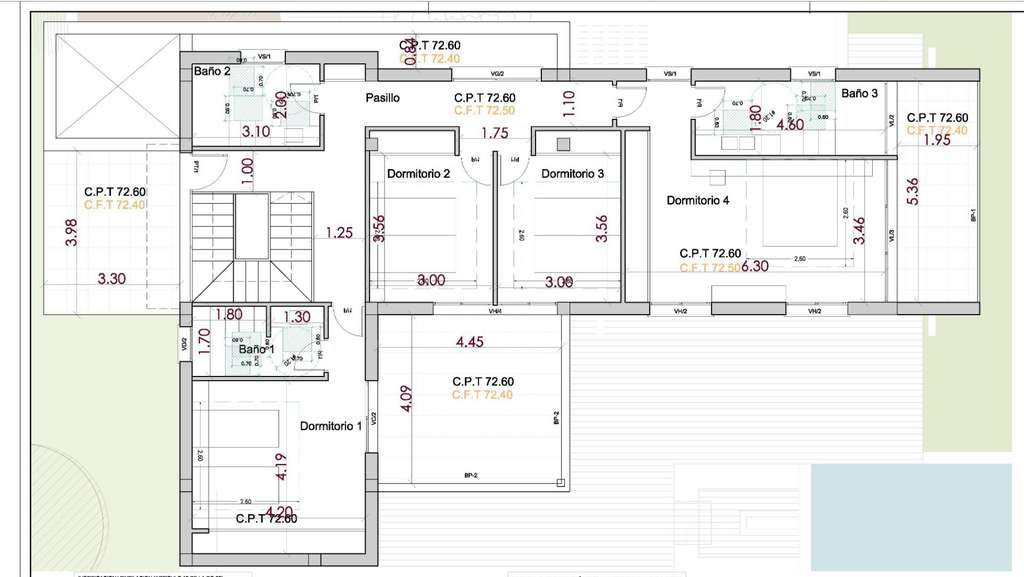
Distribución e instalaciones
- 4
- 3
Varios
- Sí
Certificado energético
Detalles
2.250.000 €
Villa de lujo estilo Ibiza con vistas panorámicas en Las Laderas, Jávea #13; #13;Exclusiva villa contemporánea rodeada de naturaleza #13;Esta excepcional villa de estilo ibicenco en Las Laderas, Jávea, ofrece una combinación perfecta entre el encanto mediterráneo y el confort moderno. Situada en una de las zonas residenciales más cotizadas de la Costa Blanca Norte, la propiedad se encuentra cerca del Parque Natural de la Granadella, lo que le proporciona unos paisajes impresionantes, privacidad y una calidad de vida inmejorable. La urbanización cuenta con infraestructuras modernas, como alcantarillado, cableado subterráneo y viviendas de nueva construcción, lo que la convierte en un lugar ideal para familias e inversores. #13; #13;Interior espacioso con elegancia mediterránea #13;Distribuida en dos niveles, la villa le da la bienvenida con un salón-comedor luminoso y espacioso con grandes ventanales que se abren a unas vistas impresionantes. La cocina abierta es moderna, funcional e ideal para la vida diaria o el entretenimiento. La planta baja también incluye un aseo de invitados y un práctico lavadero. #13; #13;En la planta superior encontrará cuatro dormitorios dobles y tres baños completos, incluida una preciosa suite principal con ventanas panorámicas con vistas al entorno natural. Los techos altos, los armarios empotrados y los acabados de calidad garantizan el confort y el estilo en toda la casa. #13; #13;Vida al aire libre con piscina infinita y terrazas #13;Diseñadas para el estilo de vida mediterráneo, las zonas exteriores ofrecen múltiples terrazas soleadas y sombreadas, perfectas para comer, relajarse o disfrutar de las vistas. La piscina infinita con ducha exterior se integra perfectamente en el paisaje, mientras que el jardín paisajístico realza la tranquilidad y la belleza natural de la villa. #13; #13;Características de alta gama para el máximo confort #13;La villa está equipada con calefacción por suelo radiante, aire acondicionado por conductos, ventanas de aluminio con doble acristalamiento, persianas exteriores en los dormitorios, sistema de alarma, intercomunicador y aislamiento de primera calidad. Los compradores también tienen la oportunidad de personalizar los acabados y la distribución según sus preferencias. #13; #13;Ubicación privilegiada en Jávea #13;Jávea es famosa por sus playas de arena, calas, puertos deportivos, campos de golf y una gastronomía excepcional. La propiedad está convenientemente situada cerca de colegios internacionales, restaurantes y servicios. #13;Distancias clave: #13;Playa El Arenal 3,5 km #13;Puerto y puerto deportivo de Jávea 7 km #13;Club de golf de Jávea 2 km #13;Aeropuerto de Alicante 100 km #13;Aeropuerto de Valencia 125 km #13; #13;Su estilo de vida mediterráneo comienza aquí #13;Ya sea para vivir de forma permanente, como residencia vacacional o como inversión, esta villa ofrece lujo, comodidad y un entorno exclusivo. Póngase en contacto con nosotros hoy mismo para obtener más detalles o concertar una visita. #13;
- hace 6 días
- 300 m2
- 7.500 €/m2
- 4
- 3
Zebra Homes
Contactar
Compartir
Tu opinión






