Villa en venta en Jávea/Xàbia
Datos básicos
- RS-57648
- 2.200.000 €
- 468 m2(4.701 €/m2)
- Alicante
- Jávea/Xàbia
Distribución e instalaciones
- 4
- 4
Varios
- Sí
Certificado energético
Detalles
2.200.000 €
Villa moderna de nueva construcción con características de lujo en Jávea
Vida mediterránea contemporánea en la Costa BlancaEsta impresionante villa independiente de nueva construcción en Jávea combina acabados de alta calidad, un diseño elegante y una funcionalidad óptima en tres amplias plantas. Situada en una de las localidades costeras más codiciadas de la Costa Blanca Norte, la propiedad ofrece un entorno residencial tranquilo rodeado de verdes montañas, parques naturales y hermosas playas. Jávea es famosa por sus aguas cristalinas, su gastronomía tradicional y su estilo de vida mediterráneo, lo que la convierte en un lugar ideal tanto para vivir como para invertir.
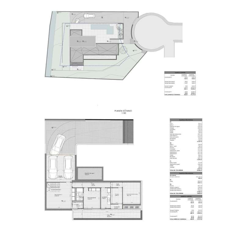
Amplio sótano diseñado para la versatilidadLa planta sótano está cuidadosamente diseñada para satisfacer las necesidades del estilo de vida moderno. Incluye un garaje abierto para dos coches, un cuarto de baño, un aseo de invitados, una sala de concepto abierto, una sala polivalente y un patio que aporta luz natural al espacio. Esta planta ofrece infinitas posibilidades, ya sea para un gimnasio, una sala de entretenimiento, una oficina o una suite para invitados.
Elegante planta baja con espacios de estar conectadosLa planta baja cuenta con un luminoso salón-comedor que se integra a la perfección con la cocina totalmente equipada, creando un espacio perfecto para las reuniones familiares. El vestíbulo de entrada, el aseo de invitados y los pasillos añaden practicidad y fluidez. Esta planta incluye dos cómodos dormitorios que comparten un moderno cuarto de baño y un amplio dormitorio principal con cuarto de baño en suite, que ofrece privacidad y comodidad.
Lujosa suite principal en la planta superiorLa planta superior está dedicada a un segundo dormitorio principal, que ofrece un refugio exclusivo con su propio cuarto de baño en suite, vestidor y pasillo. Este espacio privado garantiza comodidad y tranquilidad con hermosas vistas de los verdes paisajes circundantes.
Vida al aire libre diseñada para el clima mediterráneoLas zonas exteriores de la propiedad están pensadas para disfrutar de la vida al aire libre durante todo el año. Cuenta con dos terrazas cubiertas y dos terrazas descubiertas en la planta baja. Una de las terrazas cubiertas rodea la piscina, perfecta para relajarse en verano, mientras que la terraza descubierta junto a la cocina es ideal para comer al aire libre y celebrar reuniones.
Equipada con calefacción por suelo radiante y aire acondicionado por conductos, la villa garantiza el confort en todas las estaciones.
Ubicación privilegiada en JáveaPlaya del Arenal a 3 kmPuerto y marina de Jávea a 7 kmClub de golf de Jávea a 3 kmAeropuerto de Alicante a 100 kmAeropuerto de Valencia a 125 km
Su hogar mediterráneo le esperaTanto si busca una residencia de lujo, una casa de vacaciones o una inversión segura a largo plazo, esta villa le ofrece un estilo de vida excepcional en Jávea. Póngase en contacto con nosotros hoy mismo para concertar una visita y descubrir su futuro hogar en la Costa Blanca.
Vida mediterránea contemporánea en la Costa BlancaEsta impresionante villa independiente de nueva construcción en Jávea combina acabados de alta calidad, un diseño elegante y una funcionalidad óptima en tres amplias plantas. Situada en una de las localidades costeras más codiciadas de la Costa Blanca Norte, la propiedad ofrece un entorno residencial tranquilo rodeado de verdes montañas, parques naturales y hermosas playas. Jávea es famosa por sus aguas cristalinas, su gastronomía tradicional y su estilo de vida mediterráneo, lo que la convierte en un lugar ideal tanto para vivir como para invertir.
Amplio sótano diseñado para la versatilidadLa planta sótano está cuidadosamente diseñada para satisfacer las necesidades del estilo de vida moderno. Incluye un garaje abierto para dos coches, un cuarto de baño, un aseo de invitados, una sala de concepto abierto, una sala polivalente y un patio que aporta luz natural al espacio. Esta planta ofrece infinitas posibilidades, ya sea para un gimnasio, una sala de entretenimiento, una oficina o una suite para invitados.
Elegante planta baja con espacios de estar conectadosLa planta baja cuenta con un luminoso salón-comedor que se integra a la perfección con la cocina totalmente equipada, creando un espacio perfecto para las reuniones familiares. El vestíbulo de entrada, el aseo de invitados y los pasillos añaden practicidad y fluidez. Esta planta incluye dos cómodos dormitorios que comparten un moderno cuarto de baño y un amplio dormitorio principal con cuarto de baño en suite, que ofrece privacidad y comodidad.
Lujosa suite principal en la planta superiorLa planta superior está dedicada a un segundo dormitorio principal, que ofrece un refugio exclusivo con su propio cuarto de baño en suite, vestidor y pasillo. Este espacio privado garantiza comodidad y tranquilidad con hermosas vistas de los verdes paisajes circundantes.
Vida al aire libre diseñada para el clima mediterráneoLas zonas exteriores de la propiedad están pensadas para disfrutar de la vida al aire libre durante todo el año. Cuenta con dos terrazas cubiertas y dos terrazas descubiertas en la planta baja. Una de las terrazas cubiertas rodea la piscina, perfecta para relajarse en verano, mientras que la terraza descubierta junto a la cocina es ideal para comer al aire libre y celebrar reuniones.
Equipada con calefacción por suelo radiante y aire acondicionado por conductos, la villa garantiza el confort en todas las estaciones.
Ubicación privilegiada en JáveaPlaya del Arenal a 3 kmPuerto y marina de Jávea a 7 kmClub de golf de Jávea a 3 kmAeropuerto de Alicante a 100 kmAeropuerto de Valencia a 125 km
Su hogar mediterráneo le esperaTanto si busca una residencia de lujo, una casa de vacaciones o una inversión segura a largo plazo, esta villa le ofrece un estilo de vida excepcional en Jávea. Póngase en contacto con nosotros hoy mismo para concertar una visita y descubrir su futuro hogar en la Costa Blanca.
- hace 5 días
- 468 m2
- 4.700,85 €/m2
- 4
- 4
Immo Toro
Contactar
Compartir
Tu opinión
















