Villa en venta en La Nucía zona La Nucía
Datos básicos
- NBZH-83662
- 600.000 €
- 141 m2(4.255 €/m2)
- Alicante
- La Nucía
- La Nucía
Distribución e instalaciones
- 3
- 4
Varios
- Sí
Certificado energético
Detalles
600.000 €
Nos complace ofrecer estas villas de nueva construcción en venta en la Nucia.
Residencial de Nueva Construcción de confortables y lujosas villas con piscina privada en La Nucia.
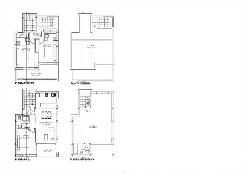
Las villas constan de 3 habitaciones dobles grandes con armarios empotrados y revestidos. Una habitación está en la planta baja y las otras dos en el primer piso.
Consta de 4 baños completamente terminados con mamparas de cristal, sanitarios de porcelana y grifería termostática en duchas, uno en la primera planta, otro en el garaje y los otros 2 en suite en las habitaciones de la primera planta.
Luminoso salón con grandes ventanales que dan acceso a la parcela privada con piscina y césped artificial donde poder disfrutar y relajarse.
Estas villas de nueva construcción en venta en la Nucia cuentan con cocina americana totalmente equipada con muebles altos y bajos, electrodomésticos de alta gama e isla con muebles bajos, encimera de SILESTONE con fregadero de acero inoxidable incorporado y campana extractora de diseño en acero inoxidable.
Instalación de Aire Acondicionado y Calefacción por conductos de AEROTERMIA con 2 máquinas independientes (bizona).
Confort y diseño PORCELANOSA proporciona acabados exclusivos, como tarimas flotantes, suelos de piedra natural y gres de primera calidad. Toda la Villa cuenta con iluminación interior y exterior LED y persianas eléctricas.
Residencial ubicado en zona exclusiva de gran calidad y con todas las comodidades; terraza, solárium, garaje privado para 2 vehículos, zonas ajardinadas, urbanización, piscina y todo lo que puedas imaginar.
Residencial comprometido con el medio ambiente, equipado con placas solares para la producción de agua caliente sanitaria, iluminación LED y aislamiento TÉRMICO-ACÚSTICO.
La Nucía es un municipio de la comarca de la Marina Baixa, Alicante. Limita con los municipios de Altea, Callosa d'En Sarrià, Benidorm, Polop y L'Alfàs del Pi.
La Nucia está situada en un valle frutal entre Benidorm y Callosa d'En Sarrià, a 3 km de la costa de Altea. El núcleo urbano está sobre un promontorio con vistas al mar Mediterráneo, a 51 km al norte de Alicante y a 8 km al norte de Benidorm.
DISTANCIAS: - Acceso desde la carretera A. - A 5 minutos de Terra Mítica. - A 5 minutos del Colegio ELIANS. - A 5 minutos de supermercados, cafeterías y todo tipo de servicios. - A 10 minutos de la Playa de Benidorm. - A 15 minutos de la Playa del Albir. - A 20 minutos del Castillo de Guadalest. - A 40Km del Aeropuerto de Alicante-Elche.
Para obtener más información sobre estas villas de nueva construcción en venta en La Nucia, CONTÁCTENOS hoy
Residencial de Nueva Construcción de confortables y lujosas villas con piscina privada en La Nucia.
Las villas constan de 3 habitaciones dobles grandes con armarios empotrados y revestidos. Una habitación está en la planta baja y las otras dos en el primer piso.
Consta de 4 baños completamente terminados con mamparas de cristal, sanitarios de porcelana y grifería termostática en duchas, uno en la primera planta, otro en el garaje y los otros 2 en suite en las habitaciones de la primera planta.
Luminoso salón con grandes ventanales que dan acceso a la parcela privada con piscina y césped artificial donde poder disfrutar y relajarse.
Estas villas de nueva construcción en venta en la Nucia cuentan con cocina americana totalmente equipada con muebles altos y bajos, electrodomésticos de alta gama e isla con muebles bajos, encimera de SILESTONE con fregadero de acero inoxidable incorporado y campana extractora de diseño en acero inoxidable.
Instalación de Aire Acondicionado y Calefacción por conductos de AEROTERMIA con 2 máquinas independientes (bizona).
Confort y diseño PORCELANOSA proporciona acabados exclusivos, como tarimas flotantes, suelos de piedra natural y gres de primera calidad. Toda la Villa cuenta con iluminación interior y exterior LED y persianas eléctricas.
Residencial ubicado en zona exclusiva de gran calidad y con todas las comodidades; terraza, solárium, garaje privado para 2 vehículos, zonas ajardinadas, urbanización, piscina y todo lo que puedas imaginar.
Residencial comprometido con el medio ambiente, equipado con placas solares para la producción de agua caliente sanitaria, iluminación LED y aislamiento TÉRMICO-ACÚSTICO.
La Nucía es un municipio de la comarca de la Marina Baixa, Alicante. Limita con los municipios de Altea, Callosa d'En Sarrià, Benidorm, Polop y L'Alfàs del Pi.
La Nucia está situada en un valle frutal entre Benidorm y Callosa d'En Sarrià, a 3 km de la costa de Altea. El núcleo urbano está sobre un promontorio con vistas al mar Mediterráneo, a 51 km al norte de Alicante y a 8 km al norte de Benidorm.
DISTANCIAS: - Acceso desde la carretera A. - A 5 minutos de Terra Mítica. - A 5 minutos del Colegio ELIANS. - A 5 minutos de supermercados, cafeterías y todo tipo de servicios. - A 10 minutos de la Playa de Benidorm. - A 15 minutos de la Playa del Albir. - A 20 minutos del Castillo de Guadalest. - A 40Km del Aeropuerto de Alicante-Elche.
Para obtener más información sobre estas villas de nueva construcción en venta en La Nucia, CONTÁCTENOS hoy
- 3/11/2025
- 141 m2
- 4.255,32 €/m2
- 3
- 4
Zebra Homes
Contactar
Compartir
Tu opinión





































