Villa en venta en La Romana zona Batistes
Datos básicos
- NB-43987
- 378.000 €
- 130 m2(2.908 €/m2)
- Alicante
- La Romana
- Batistes
Distribución e instalaciones
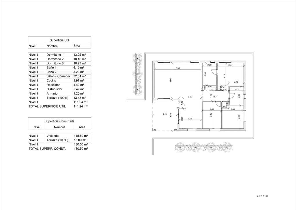
- 3
- 2
Varios
- Sí
Certificado energético
Detalles
378.000 €
Villas de obra nueva situadas en La Romana.
Villas de obra nueva con varios modelos a elegir entre 2 o 3 dormitorios, de una o 2 plantas y construidas con losa o con estructura: dependiendo del modelo y la parcela elegida, se calculará el precio exacto.
Todas las villas se construyen en parcelas rústicas de más de 10.000 m2 de los cuales se vallarán 2.500 m2.
Las villas disponen de cocina americana con el salón, armarios empotrados, piscina privada, porche y plaza de parking exterior.
Hay varias parcelas a elegir, para el cálculo del precio se ha considerado una parcela con un precio de 73.000 eur (si se elige otra parcela, se pagará o abonará la diferencia según el precio de la misma).
Realizada en régimen de auto promoción, entrega en unos 12 meses desde la concesión de la licencia.
Si busca un entorno tranquilo, cerca de pueblos típicos españoles alejados de la masificación turística, rodeado de montañas, con una amplísima parcela y a unos 30 minutos del mar, esta es su casa.
La Romana es un típico pueblo español con todos los servicios para el día a día, rodeado de montañas y con varios parajes naturales en las cercanías donde se pueden hacer rutas de senderismo o mountain bike.
Situado a 30 minutos del aeropuerto de Alicante.
- hace 11 días
- 130 m2
- 2.907,69 €/m2
- 3
- 2
Procare Estates
Contactar
Compartir
Tu opinión
























