Villa en venta en La Romana zona Batistes
Datos básicos
- M-68697
- 378.000 €
- 130 m2(2.908 €/m2)
- Alicante
- La Romana
- Batistes
Distribución e instalaciones
- 3
- 2
Varios
- Sí
Certificado energético
- B
Detalles
378.000 €
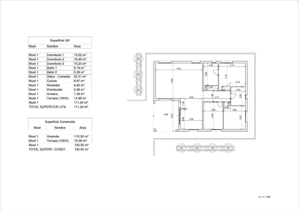
VILLAS DE OBRA NUEVA EN LA ROMANA Villas de obra nueva situados en La Romana. Villa de una sola planta construida en parcela rústica de 14 569m2, dispone de 3 dormitorios y 2 baños, cocina americana con el salón, armarios empotrados, piscina privada y plaza de parking exterior. Si busca un entorno tranquilo, cerca de pueblos típicos españoles, rodeado de montañas y a unos 30 minutos del mar, esta es su casa. La Romana típico pueblo español, rodeado de montañas y a unos 30 minutos del mar. Villa situada a 30 minutos del aeropuerto de Alicante.
- hace 13 días
- 130 m2
- 2.907,69 €/m2
- 3
- 2
Medimar Eiendom
Contactar
Compartir
Tu opinión
























