Villa en venta en La Romana zona Villas de la Romana
Datos básicos
- RS-56567
- 315.000 €
- 127 m2(2.480 €/m2)
- Alicante
- La Romana
- Villas de la Romana
Distribución e instalaciones
- 3
- 2
Varios
- Sí
Certificado energético
Detalles
315.000 €
Villas de estilo moderno en La Romana, Alicante
Exclusivas viviendas de nueva construcción en un encantador pueblo españolEstas villas de nueva construcción de estilo moderno en La Romana están diseñadas para aquellos que buscan paz, comodidad y el auténtico estilo de vida español. Situadas en parcelas de 370 m² en una zona residencial a las afueras del pueblo, las viviendas se encuentran a pocos pasos del centro, donde se puede disfrutar de restaurantes tradicionales, tiendas y todos los servicios diarios. Rodeada de viñedos, almendros y paisajes montañosos, La Romana ofrece un entorno rural único a solo 30 minutos de la costa.
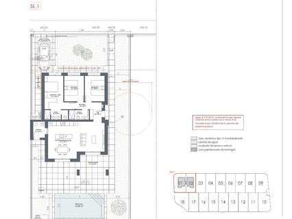
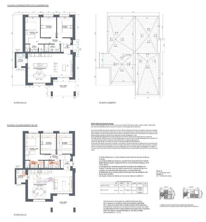
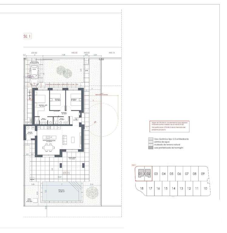
Diseño espacioso con comodidades modernasCada villa ofrece 127 m² de superficie construida distribuidos en 3 dormitorios y 2 baños, incluida una suite principal con baño en suite. La sala de estar y el comedor de planta abierta se integran a la perfección con una cocina amueblada y acceso directo a la terraza y la piscina privada. Otras características adicionales son un trastero/lavadero y un aparcamiento privado dentro de la parcela. Para aquellos que deseen más espacio exterior, existe la opción de añadir un solárium en la azotea con un coste adicional.
Características premium incluidasEstas villas están construidas con acabados de calidad y están totalmente equipadas con:Piscina privada de 6 x 3,5 mAire acondicionado con bomba de calor (instalación y unidad incluidas)Cocina moderna con armarios blancos y encimeras de granitoIluminación LED en toda la casa y en el porcheDoble acristalamiento, puertas interiores blancas y armarios empotrados
La entrega está prevista para 14 meses después de la reserva, lo que garantiza una vivienda nueva y personalizada.
Ubicación ideal en la campiña alicantinaLa Romana es un pueblo tradicional español en el interior de Alicante, conocido por su acogedora comunidad y su entorno natural. Su ubicación ofrece el equilibrio perfecto entre tranquilidad y accesibilidad:Aspe: 8 kmElche: 18 kmAeropuerto de Alicante: 35 kmPlayas de la Costa Blanca: 30 kmCampos de golf (Font del Llop y Alenda) – 20 kmCiudad de Alicante – 32 km
Su estilo de vida mediterráneo le esperaSi busca un entorno tranquilo rodeado de montañas, viñedos y encantadores pueblos españoles, pero cerca de la costa mediterránea, estas villas en La Romana son la elección perfecta. Póngase en contacto con nosotros hoy mismo para obtener más información y asegurarse su nueva vivienda en Alicante.
Exclusivas viviendas de nueva construcción en un encantador pueblo españolEstas villas de nueva construcción de estilo moderno en La Romana están diseñadas para aquellos que buscan paz, comodidad y el auténtico estilo de vida español. Situadas en parcelas de 370 m² en una zona residencial a las afueras del pueblo, las viviendas se encuentran a pocos pasos del centro, donde se puede disfrutar de restaurantes tradicionales, tiendas y todos los servicios diarios. Rodeada de viñedos, almendros y paisajes montañosos, La Romana ofrece un entorno rural único a solo 30 minutos de la costa.
Diseño espacioso con comodidades modernasCada villa ofrece 127 m² de superficie construida distribuidos en 3 dormitorios y 2 baños, incluida una suite principal con baño en suite. La sala de estar y el comedor de planta abierta se integran a la perfección con una cocina amueblada y acceso directo a la terraza y la piscina privada. Otras características adicionales son un trastero/lavadero y un aparcamiento privado dentro de la parcela. Para aquellos que deseen más espacio exterior, existe la opción de añadir un solárium en la azotea con un coste adicional.
Características premium incluidasEstas villas están construidas con acabados de calidad y están totalmente equipadas con:Piscina privada de 6 x 3,5 mAire acondicionado con bomba de calor (instalación y unidad incluidas)Cocina moderna con armarios blancos y encimeras de granitoIluminación LED en toda la casa y en el porcheDoble acristalamiento, puertas interiores blancas y armarios empotrados
La entrega está prevista para 14 meses después de la reserva, lo que garantiza una vivienda nueva y personalizada.
Ubicación ideal en la campiña alicantinaLa Romana es un pueblo tradicional español en el interior de Alicante, conocido por su acogedora comunidad y su entorno natural. Su ubicación ofrece el equilibrio perfecto entre tranquilidad y accesibilidad:Aspe: 8 kmElche: 18 kmAeropuerto de Alicante: 35 kmPlayas de la Costa Blanca: 30 kmCampos de golf (Font del Llop y Alenda) – 20 kmCiudad de Alicante – 32 km
Su estilo de vida mediterráneo le esperaSi busca un entorno tranquilo rodeado de montañas, viñedos y encantadores pueblos españoles, pero cerca de la costa mediterránea, estas villas en La Romana son la elección perfecta. Póngase en contacto con nosotros hoy mismo para obtener más información y asegurarse su nueva vivienda en Alicante.
- 14/10/2025
- 127 m2
- 2.480,31 €/m2
- 3
- 2
Immo Toro
Contactar
Compartir
Tu opinión








