Apartamento en venta en Orihuela zona Villamartín
Datos básicos
- GSR-59394
- 199.000 €
- 58 m2(3.431 €/m2)
- Alicante
- Orihuela
- Villamartín
Distribución e instalaciones
- 2
- 1
Certificado energético
Detalles
199.000 €
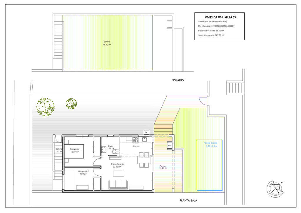
Este encantador bungalow reformado en Blue Lagoon ofrece un estilo de vida mediterráneo en una de las zonas más tranquilas y consolidadas de Orihuela Costa. Con 58 m² de superficie habitable, un solárium privado de 48 m² y una generosa parcela de 202 m², destaca por su amplitud exterior y su jardín de 147 m², perfecto para disfrutar del buen tiempo durante todo el año. La vivienda, totalmente reformada, cuenta con 2 dormitorios, un baño con ducha y mampara, suelo laminado efecto madera y una cocina a estrenar equipada con todos los electrodomésticos. El solárium, con elegantes acabados con césped artificial y una cubierta de brezo, ofrece un espacio ideal para relajarse con total privacidad. Además, la gran parcela permite al futuro propietario instalar una piscina privada si lo desea (a su cargo). La ubicación es inmejorable: a solo unos minutos del Colegio Internacional El Limonar, varios campos de golf, el centro comercial Villamartín, el complejo Marimba Blue (con piscina, restaurante y 3 pistas de pádel), y el conocido Greenlands Blue Lagoon, con su espectacular minigolf y restaurante con techo de paja.
- hace 19 días
- 58 m2
- 3.431,03 €/m2
- 2
- 1
Global Spain
Contactar
Compartir
Tu opinión























