Apartamento en venta en Orihuela zona Orihuela-Costa
Datos básicos
- SP-37360
- 339.000 €
- 73 m2(4.644 €/m2)
- Alicante
- Orihuela
- Orihuela-Costa
Distribución e instalaciones
- 2
- 2
Varios
- Sí
Certificado energético
- B
Detalles
339.000 €
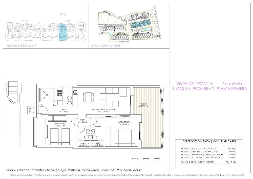
RESIDENCIAL DE OBRA NUEVA EN PLAYA FLAMENCA !!!
De un promotor de gran experiencia en la zona, estamos orgullosos de ofrecer este nuevo residencial recién lanzado a la venta a solo 500 m del mar en la popular zona de Playa Flamenca (Orihuela Costa).
Residencial con bonitas piscinas comunitarias, jacuzzis y bonitos jardines comunes. Todos los servicios como supermercados, bares y restaurantes, etc. se encuentran a poca distancia en un lugar muy céntrico de Orihuela Costa.
Amplia variedad de tipos para elegir: estudios, apartamentos de 1, 2 o 3 habitaciones. Pisos bajos con jardines privados o áticoss con solarium privados. Todas las viviendas cuentan con plaza de garaje y trastero incluidos en el precio.
El centro comercial Zenia Boulevard a 1 km y varios campos de golf como Villamartín, Campoamor a 5 km de este residencial lo convertirán en un lugar ideal para sus vacaciones o su vida permanente.
- hace 3 horas
- 73 m2
- 4.643,84 €/m2
- 2
- 2
Global Spain
Contactar
Compartir
Tu opinión
































