Apartamento en venta en Orihuela zona Dehesa de Campoamor
Datos básicos
- C-16134
- 215.000 € (antes 240.000 €)
- 73 m2(2.945 €/m2)
- Alicante
- Orihuela
- Dehesa de Campoamor
Distribución e instalaciones
- 3
- 1
Certificado energético
Detalles
215.000 € 240.000 €
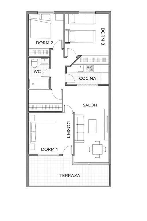
Descubre este encantador apartamento ubicado en Altos de Campoamor, una de las áreas mas bonitas y verdes de Orihuela Costa. Con una superficie construida de 73 m2 y un estado general muy bueno, esta propiedad es ideal para pasar unos vacaciones perfectas o residir todo el año. Orientado al Este, cuenta con una luminosa terraza de unos 15 m2 donde podrás relajarte mientras disfrutas del clima mediterráneo disfrutando de bonitas vistas sobre el residencias, su piscina y zonas verdes. El apartamento dispone de tres dormitorios dobles, cada una con el armario empotrado, perfectas para acomodar a toda la familia o recibir invitados cómodamente. Se vende totalmente amueblado y equipado. Plaza de aparcamiento y trastero incluido en el precio.~Este complejo residencial ofrece una hermosa y grande piscina comunitaria; perfecta para los días calurosos del verano español. La urbanización está equipada con zonas infantiles pensadas especialmente para los más pequeños así como pistas de tenis disponibles todo el año.~La ubicación no podría ser mejor: situado a tan solo 800 metros de las hermosas playas locales, tendrás fácil acceso tanto al mar como también cerca se encuentran diversos centros comerciales que satisfacen cualquier necesidad diaria o capricho eventual.
- hace 16 días
- 73 m2
- 2.945,21 €/m2
- 10.4%
- 3
- 1
Moraga Immo
Contactar
Compartir
Tu opinión


























