Apartamento en venta en Orihuela zona Orihuela-Costa
Datos básicos
- REDSP-83811
- 339.000 €
- 74 m2(4.581 €/m2)
- Alicante
- Orihuela
- Orihuela-Costa
Distribución e instalaciones
- 2
- 2
Varios
- Sí
Certificado energético
Detalles
339.000 €
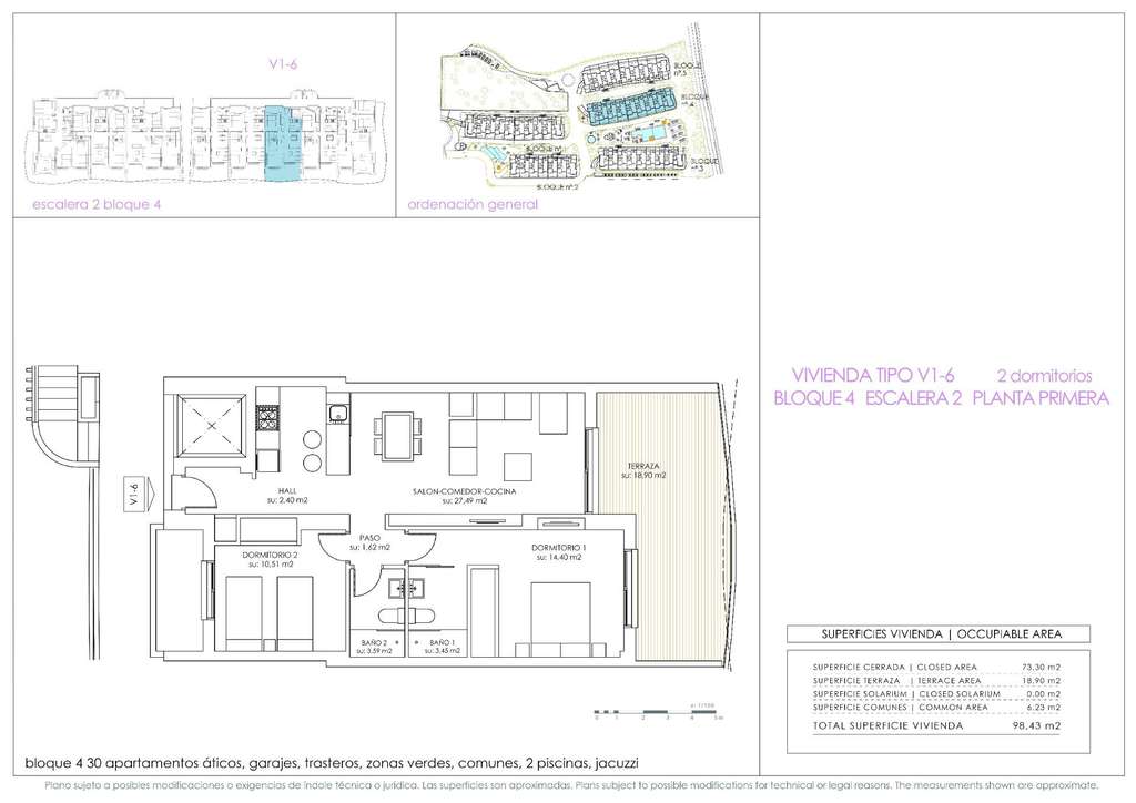
RESIDENCIAL DE OBRA NUEVA EN PLAYA FLAMENCA !!!
De un promotor de gran experiencia en la zona, estamos orgullosos de ofrecer este nuevo residencial recién lanzado a la venta a solo 500 m del mar en la popular zona de Playa Flamenca (Orihuela Costa).
Residencial con bonitas piscinas comunitarias, jacuzzis y bonitos jardines comunes. Todos los servicios como supermercados, bares y restaurantes, etc. se encuentran a poca distancia en un lugar muy céntrico de Orihuela Costa.
Amplia variedad de tipos para elegir: apartamentos de 2, 3 o 4 habitaciones. Pisos bajos con jardines privados o áticos con solarium privados. Todas las viviendas cuentan con plaza de garaje y trastero incluidos en el precio.
El centro comercial Zenia Boulevard a 1 km y varios campos de golf como Villamartín, Campoamor a 5 km de este residencial lo convertirán en un lugar ideal para sus vacaciones o su vida permanente.
- hace 12 días
- 74 m2
- 4.581,08 €/m2
- 2
- 2
Contactar
Compartir
Tu opinión









