Ático en venta en Orihuela zona Orihuela-Costa
Datos básicos
- SP-80624
- 295.000 €
- 65 m2(4.538 €/m2)
- Alicante
- Orihuela
- Orihuela-Costa
Distribución e instalaciones
- 2
- 2
Varios
- Sí
Certificado energético
- B
Detalles
295.000 €
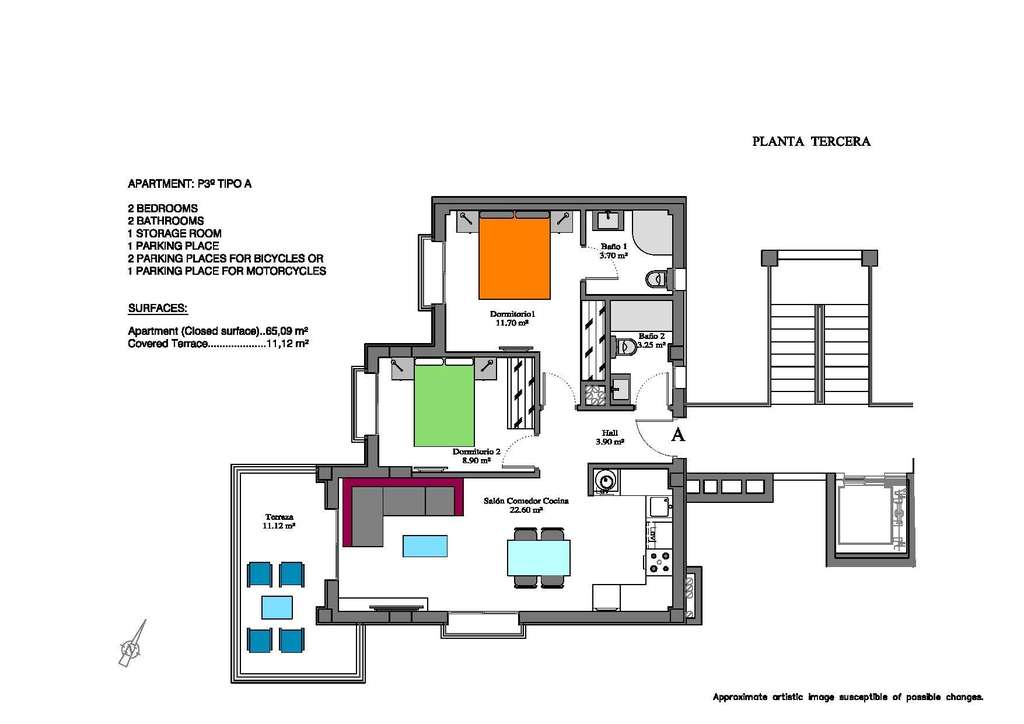
Magnífico apartamento entre el mar y el golf!
Coqueto apartamento con 2 dormitorios y 2 baños
La residencia está situada en una zona tranquila y segura y está totalmente equipada (dispone de todas las comodidades posibles). En las inmediaciones encontrará por ejemplo 4 magníficos campos de golf, una gran zona comercial (la Zenia Boulevard), varias playas, supermercados, bares y restaurantes, etc. Es una residencia de lujo, todos los apartamentos y casas son espaciosos y confortables.
La residencia dispone de aparcamiento privado y está equipada con ascensores.
En el complejo hay una piscina comunitaria (gran piscina, piscina infantil y jacuzzi con agua caliente). También un parque infantil y varios espacios verdes.
En resumen: el lugar ideal para descansar y disfrutar de la región, para vivir en España.
- hace 3 horas
- 65 m2
- 4.538,46 €/m2
- 2
- 2
Global Spain
Contactar
Compartir
Tu opinión





















