Ático en venta en Orihuela zona Villamartín
Datos básicos
- GSR-13654
- 310.000 €
- 72 m2(4.306 €/m2)
- Alicante
- Orihuela
- Villamartín
Distribución e instalaciones
- 2
- 2
Certificado energético
Detalles
310.000 €
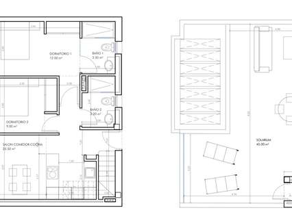
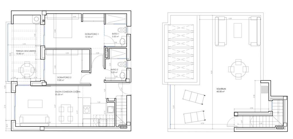
Este moderno ático de 2 dormitorios y 2 baños se encuentra en Villamartín, Alicante, en una ubicación privilegiada a pocos minutos a pie de todos los servicios (restaurantes, bares y tiendas). La fantástica playa de La Zenia y el centro comercial La Zenia Boulevard están a tan solo 10 minutos en coche. Villamartín Plaza y Villamartín Golf se encuentran a menos de 4 minutos. La propiedad consta de un amplio salón, una cocina-comedor de planta abierta, persianas eléctricas, aire acondicionado (frío/calor) en toda la vivienda, un dormitorio principal con armarios empotrados y baño en suite, un segundo dormitorio con armarios empotrados y un segundo baño con ducha. Las puertas del patio dan a una terraza privada (con un pequeño lavadero) para disfrutar del sol durante todo el día, y hay una gran terraza/solárium en la azotea con vistas espectaculares. También incluye una plaza de aparcamiento privada asignada. Hay una encantadora zona verde comunitaria con piscina comunitaria, zona de petanca, parque infantil y un precioso parque comunitario. Estos apartamentos ofrecen una excelente relación calidad-precio y su ubicación es inmejorable, con bares, restaurantes y servicios a pocos pasos. La zona de Villamartín es muy popular entre los turistas y la mayor parte de su población está formada por comunidades de expatriados de Europa Occidental que se han asentado allí en los últimos 10 años, transformando prácticamente el pueblo en una ciudad de aspecto moderno. También hay otros campos de golf cerca y numerosas playas de arena blanca.
- hace 2 días
- 72 m2
- 4.305,56 €/m2
- 2
- 2
Global Spain
Contactar
Compartir
Tu opinión














































