Casa en venta en Orihuela zona Villamartín
Datos básicos
- GSR-62453
- 299.000 €
- 75 m2(3.987 €/m2)
- Alicante
- Orihuela
- Villamartín
Distribución e instalaciones
- 2
- 1
Varios
- Sí
Certificado energético
Detalles
299.000 €
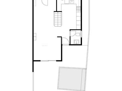
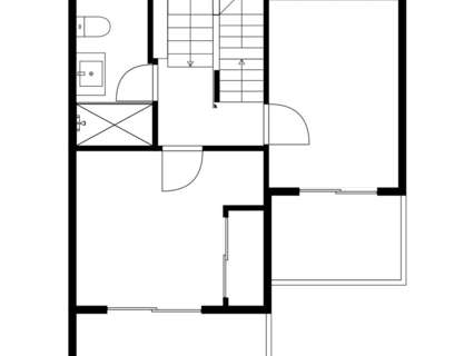
Casa adosada bien cuidada y elegante en la encantadora urbanización Entre Golf, una de las más apreciadas y tranquilas de Villamartín.Situada en la tranquila y privada calle Bidasoa, a poca distancia de restaurantes, cafeterías y supermercados, y a un corto trayecto en coche de la popular Villamartín Plaza y La Fuente. También se encuentra a poca distancia en coche de varios campos de golf, incluido el de Villamartín.Luminosa y espaciosaEl luminoso y grande salón conecta a la perfección con la cocina abierta y la soleada terraza orientada al sur. También hay un aseo separado, ideal para los invitados.Dispone de su propia piscina privada con bomba de calor, jardín de bajo mantenimiento y posibilidad de aparcar en la parcela.Varios vecinos han optado por convertir el comedor en un dormitorio adicional, por lo que las posibilidades son muchas.En la planta superior hay dos amplios dormitorios dobles, ambos con armarios empotrados y balcón privado, ideales para empezar la mañana con una taza de café. El luminoso cuarto de baño, totalmente alicatado, está equipado con una amplia ducha.En el solárium le espera una maravillosa terraza en la azotea con impresionantes vistas de la zona.Listo para entrar a vivir y amueblado.El apartamento se vende amueblado con elegantes muebles de interior, accesorios y prácticos artículos para el hogar: solo tiene que traer su maleta y empezar a vivir.Ubicación privilegiada en Villamartín - Los Altos.Los Altos es conocido por su ambiente tranquilo, sus excelentes servicios y su proximidad a playas, tiendas y restaurantes. Una combinación perfecta de espacio, comodidad y encanto mediterráneo.Además de su propia piscina privada, también tiene acceso a la zona de piscina comunitaria de la urbanización, situada a pocos metros, al final de la calle. Está muy bien cuidada, con césped natural, sombrillas y pista de petanca.Se trata de una propiedad que resulta atractiva tanto para residentes permanentes como para turistas, y se vende en exclusiva a través de nuestra agencia. ¡Póngase en contacto con nosotros hoy mismo para concertar una visita a esta joya en una ubicación privilegiada!
- hace 28 días
- 75 m2
- 3.986,67 €/m2
- 2
- 1
Global Spain
Contactar
Compartir
Tu opinión






































