Dúplex en venta en Orihuela zona Orihuela-Costa
Datos básicos
- 32884
- 182.000 €
- 122 m2(1.492 €/m2)
- Alicante
- Orihuela
- Orihuela-Costa
Distribución e instalaciones
- 2
- 1
Varios
- Sí
Certificado energético
Detalles
182.000 €
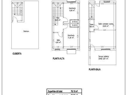
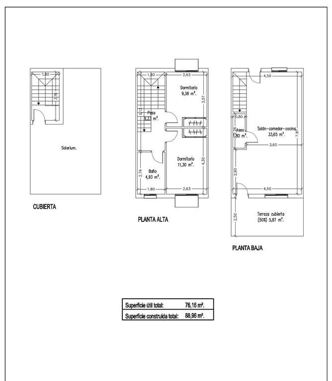
En la codiciada zona de Playa Flamenca, se presenta este atractivo adosado dúplex que fusiona comodidad y una ubicación inmejorable. La propiedad cuenta con dos acogedores dormitorios, un baño completo y un aseo adicional, distribuidos eficientemente para maximizar el espacio. Disfrute del aire libre en su jardín delantero de 25 m² ideal para estacionar vehículos o relajar bajo el sol, así como en su jardín trasero de 24 m² perfecto para reuniones familiares o momentos tranquilos al atardecer. Este hogar también ofrece una terraza descubierta junto a otras dos terrazas ideales para disfrutar del clima mediterráneo durante todo el año; además incluye un exclusivo solárium privado de 20 m² donde podrá tomar baños solares disfrutando vistas despejadas. El complejo residencial está equipado con atractivas instalaciones como una refrescante piscina comunitaria perfecta para los calurosos días veraniegos mientras que las orientaciones Este y Suroeste garantizan luminosidad natural desde primera hora hasta bien entrada la tarde. Los gastos anuales son accesibles: IBI por tan solo €240/año e cuota mensual comunidad €370/año hacen más fácil mantener esta maravillosa vivienda cerca del mar Mediterráneo por sólo €182,000 - ¡una oportunidad imperdible dentro de uno de los destinos más solicitados a lo largo dela Costa Blanca! Con todas las comodidades necesarias tantodiariascomo recreativas,y listapara ser habitadade inmediato.
- hace 23 días
- 122 m2
- 1.491,8 €/m2
- 2
- 1
WGN Spain
Contactar
Compartir
Tu opinión















