Villa en venta en Orihuela zona Orihuela-Costa
Datos básicos
- ES-89686
- 950.000 € (antes 1.050.000 €)
- 260 m2(3.654 €/m2)
- Alicante
- Orihuela
- Orihuela-Costa
Distribución e instalaciones
- 3
- 3
Varios
- Sí
Certificado energético
- B
Detalles
950.000 € 1.050.000 €
Moderna villa de lujo en Limonero, Las Colinas Golf and Country Club
Impresionante villa orientada al sur situada en la exclusiva comunidad de Limonero, con acceso directo al galardonado campo de golf. Sobre una parcela de 697 m², ofrece 260 m² de espacio habitable cuidadosamente diseñado, un solárium de 45 m² y una elegante piscina privada que recorre todo el lateral de la vivienda.
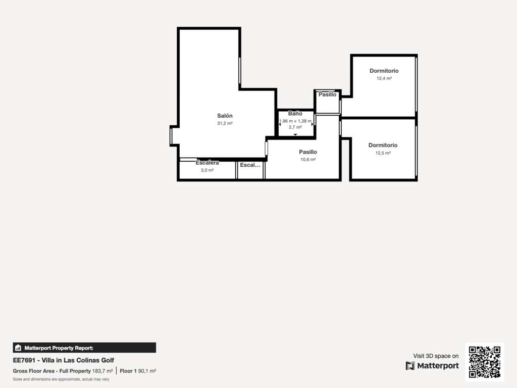
La planta principal cuenta con un salón-comedor de concepto abierto con cocina de diseño completamente equipada, acabados de alta gama y grandes ventanales que integran perfectamente el interior con el exterior. Un pasillo acristalado conduce a la suite principal con terraza privada, armarios empotrados y un lujoso baño en suite con bañera de hidromasaje y ducha tipo walk-in.
En la planta baja se encuentran dos dormitorios adicionales con acceso directo a una amplia terraza y jardín paisajístico. También dispone de un baño completo, dos trasteros y una gran sala polivalente, ideal como sala de juegos o de entretenimiento.
Las zonas exteriores son perfectas para disfrutar, con varias terrazas, zona de barbacoa, ducha exterior y un solárium panorámico en la azotea con vistas al golf y al mar.
Construida en 2017 y vendida completamente amueblada, la villa incluye:
Suelo radiante
Aire acondicionado
Electrodomésticos
Persianas eléctricas
Sistema de alarma
Paneles solares
Domótica
2 plazas de aparcamiento privadas
Una oportunidad excepcional para adquirir una vivienda de lujo llave en mano en una de las comunidades más exclusivas de la Costa Blanca.
Sobre Las Colinas Golf and Country Club
Las Colinas Golf & Country Club es una comunidad residencial donde se ubican villas y apartamentos exclusivos alrededor de un campo de golf de campeonato. El campo par-71 ha sido diseñado por el reconocido arquitecto paisajista americano Cabell B. Robinson y cuenta con una zona de juego corto diseñada por el legendario Miguel Ángel Jiménez.
El resort ha sido premiado por los World Travel Awards como "Mejor Resort de Villas de España y Europa".
Instalaciones:
· Campo de golf de 18 hoyos par-71
· Restaurantes y cafeterías
· Gimnasio, pistas de tenis, baloncesto y voleibol
· Spa y piscina
· Tienda
· Punto de carga para coches eléctricos
· WOW Beach Club con piscina, restaurante y bar
Distancias:
· Aeropuerto de Alicante – 65 km, 50 min
· Centro comercial La Zenia Boulevard – 12 km, 16 min
· Supermercado más cercano – 6 km, 10 min
· Beach Club – WOW Beach – 9 km, 15 min
· Club náutico Dehesa de Campoamor – 8 km, 15 min
· Hospital más cercano, Centro Médico Ribera Campoamor – 12 km, 16 min
Impresionante villa orientada al sur situada en la exclusiva comunidad de Limonero, con acceso directo al galardonado campo de golf. Sobre una parcela de 697 m², ofrece 260 m² de espacio habitable cuidadosamente diseñado, un solárium de 45 m² y una elegante piscina privada que recorre todo el lateral de la vivienda.
La planta principal cuenta con un salón-comedor de concepto abierto con cocina de diseño completamente equipada, acabados de alta gama y grandes ventanales que integran perfectamente el interior con el exterior. Un pasillo acristalado conduce a la suite principal con terraza privada, armarios empotrados y un lujoso baño en suite con bañera de hidromasaje y ducha tipo walk-in.
En la planta baja se encuentran dos dormitorios adicionales con acceso directo a una amplia terraza y jardín paisajístico. También dispone de un baño completo, dos trasteros y una gran sala polivalente, ideal como sala de juegos o de entretenimiento.
Las zonas exteriores son perfectas para disfrutar, con varias terrazas, zona de barbacoa, ducha exterior y un solárium panorámico en la azotea con vistas al golf y al mar.
Construida en 2017 y vendida completamente amueblada, la villa incluye:
Suelo radiante
Aire acondicionado
Electrodomésticos
Persianas eléctricas
Sistema de alarma
Paneles solares
Domótica
2 plazas de aparcamiento privadas
Una oportunidad excepcional para adquirir una vivienda de lujo llave en mano en una de las comunidades más exclusivas de la Costa Blanca.
Sobre Las Colinas Golf and Country Club
Las Colinas Golf & Country Club es una comunidad residencial donde se ubican villas y apartamentos exclusivos alrededor de un campo de golf de campeonato. El campo par-71 ha sido diseñado por el reconocido arquitecto paisajista americano Cabell B. Robinson y cuenta con una zona de juego corto diseñada por el legendario Miguel Ángel Jiménez.
El resort ha sido premiado por los World Travel Awards como "Mejor Resort de Villas de España y Europa".
Instalaciones:
· Campo de golf de 18 hoyos par-71
· Restaurantes y cafeterías
· Gimnasio, pistas de tenis, baloncesto y voleibol
· Spa y piscina
· Tienda
· Punto de carga para coches eléctricos
· WOW Beach Club con piscina, restaurante y bar
Distancias:
· Aeropuerto de Alicante – 65 km, 50 min
· Centro comercial La Zenia Boulevard – 12 km, 16 min
· Supermercado más cercano – 6 km, 10 min
· Beach Club – WOW Beach – 9 km, 15 min
· Club náutico Dehesa de Campoamor – 8 km, 15 min
· Hospital más cercano, Centro Médico Ribera Campoamor – 12 km, 16 min
- 31/10/2025
- 260 m2
- 3.653,85 €/m2
- 9.5%
- 3
- 3
Global Spain
Contactar
Compartir
Tu opinión












































