Villa en venta en Orihuela
Datos básicos
- ETRV-T3632
- 379.900 €
- 100 m2(3.799 €/m2)
- Alicante
- Orihuela
Distribución e instalaciones
- 3
- 2
Varios
- 172 m2
- Sí
Certificado energético
- B
Detalles
379.900 €
Villas modernas con piscina privada en Vistabella Golf Resort, Orihuela
Villas de nueva construcción en el corazón de la Costa Blanca Golf
Descubra esta exclusiva urbanización de 42 villas de nueva construcción, situada en el prestigioso Vistabella Golf Resort, en el municipio de Orihuela. Estas modernas viviendas ofrecen una combinación perfecta de lujo, comodidad y vida al aire libre, a pocos pasos de un campo de golf de 18 hoyos y de todos los servicios esenciales.
Situado en un entorno natural tranquilo entre San Miguel de Salinas y Los Montesinos, Vistabella es ideal para los amantes del golf y para aquellos que buscan un estilo de vida de alta calidad bajo el sol del Mediterráneo.
Amplias viviendas con características de primera calidad
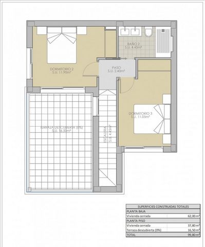
Cada villa está diseñada con una distribución contemporánea en dos plantas, con 3 dormitorios y 2 baños. La primera planta cuenta con una terraza descubierta y hay un solárium en la azotea disponible con un coste adicional.
Características principales:
Piscina privada incluida en todas las villas
Aparcamiento en la parcela con puerta motorizada
Calefacción por suelo radiante en los baños
Duchas a ras de suelo con mamparas de cristal
Muebles de baño modernos con espejos e iluminación
Cocinas totalmente equipadas con frigorífico integrado, campana extractora, vitrocerámica, horno, lavavajillas y lavadora
Persianas motorizadas de aluminio en los dormitorios
Cristales Guardian Sun de alto rendimiento en las ventanas
Armarios empotrados con cajones en todos los dormitorios
Aire acondicionado por conductos preinstalado
Puerta principal reforzada con seis puntos de cierre
Ubicación privilegiada con excelentes conexiones
Situadas a pocos pasos de la casa club del campo de golf Vistabella, restaurantes, bares y tiendas, estas viviendas ofrecen fácil acceso a todo lo necesario para el día a día, al tiempo que disfrutan de un entorno tranquilo y seguro.
Puntos de interés cercanos:
San Miguel de Salinas y Los Montesinos: 5 km
Playas con bandera azul de Guardamar del Segura: 15 km
Aeropuerto Internacional de Alicante: 55 km
Aeropuerto de Murcia Corvera: 65 km
Una opción ideal para vivir o invertir
Tanto si busca una residencia permanente, una casa de vacaciones o una propiedad con potencial para alquilar, estas villas en Vistabella Golf ofrecen una combinación inmejorable de ubicación, diseño y estilo de vida.
Póngase en contacto con nosotros hoy mismo para concertar una visita y asegurarse la casa de sus sueños en la Costa Blanca.
- hace 24 días
- 100 m2
- 3.799 €/m2
- 3
- 2
- 172 m2
ArKadia Publishing Ltd 2
Contactar
Compartir
Tu opinión
Mapa













