Villa en venta en Orihuela zona Vistabella Golf
Datos básicos
- SP-48093
- 549.900 €
- 175 m2(3.142 €/m2)
- Alicante
- Orihuela
- Vistabella Golf
Distribución e instalaciones
- 4
- 3
Varios
- Sí
Certificado energético
- B
Detalles
549.900 €
Villas de nueva construcción en Vistabella Golf Resort – Orihuela
Disfrute de la vida moderna mediterránea en el corazón de la Costa Blanca con estas impresionantes villas de nueva construcción en Vistabella Golf Resort. Situada entre San Miguel de Salinas y Los Montesinos, en el municipio de Orihuela, esta exclusiva urbanización ofrece lujo, comodidad y una ubicación inmejorable tanto para los amantes del golf como para quienes buscan un estilo de vida tranquilo.
Dos modelos de villas distintos
Los compradores pueden elegir entre dos elegantes diseños:
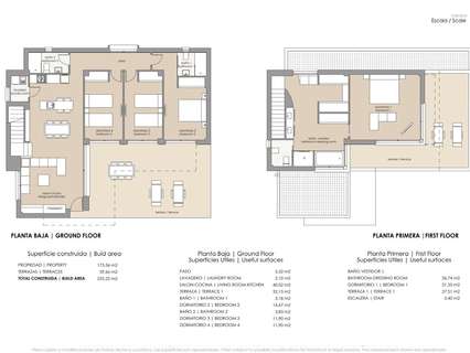
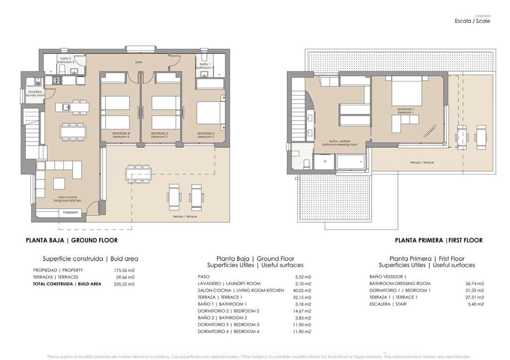
Villas de una sola planta con 3 dormitorios, 2 baños y solárium en la azotea.
Villas de dos plantas con 4 dormitorios, 3 baños y terraza solárium en la primera planta.
Ambos modelos se encuentran en parcelas de aproximadamente 300 m² e incluyen piscina privada y aparcamiento en el recinto.
Calidad superior y confort moderno
Todas las villas cuentan con acabados de lujo, incluyendo aire acondicionado por conductos totalmente instalado, cocinas equipadas con electrodomésticos, iluminación exterior, persianas eléctricas y elegantes mamparas de ducha en los baños. La combinación de estilo y funcionalidad garantiza un hogar que es a la vez bonito y práctico.
Exclusivo estilo de vida en un complejo de golf
Vistabella Golf Resort es una comunidad cerrada con un campo de golf de 18 hoyos, pistas de pádel, una bolera, un supermercado y una amplia variedad de bares y restaurantes. Las futuras mejoras elevarán el complejo a un auténtico destino de 5 estrellas, con nuevas incorporaciones previstas, como un bar de champán, un bar de sushi, un hotel con spa, una playa artificial, una pista de tenis, un campo de fútbol y un bar gourmet.
Ubicación privilegiada en la Costa Blanca
El complejo ofrece un excelente acceso a las mejores playas, campos de golf y servicios de la región. Las distancias a los principales puntos de interés son las siguientes:
Playa de La Mata: 18 km
Playa de Guardamar del Segura: 20 km
Torrevieja: 15 km
Aeropuerto de Alicante: 55 km
Aeropuerto de Murcia: 68 km
Villamartín Golf: 12 km
Las Colinas Golf & Country Club: 14 km
La casa de sus sueños le espera
Ya sea como residencia permanente, casa de vacaciones o inversión para alquilar, estas villas de nueva construcción en Vistabella Golf Resort ofrecen un valor excepcional en una de las zonas costeras más codiciadas de España.
Póngase en contacto con nosotros hoy mismo para concertar una visita y asegurarse su lugar en esta lujosa comunidad de golf.
- hace 2 horas
- 175 m2
- 3.142,29 €/m2
- 4
- 3
Global Spain
Contactar
Compartir
Tu opinión











