Apartamento en venta en Pilar de la Horadada zona El Mojón
Datos básicos
- GSR-13537
- 399.000 €
- 90 m2(4.433 €/m2)
- Alicante
- Pilar de la Horadada
- El Mojón
Distribución e instalaciones
- 3
- 2
Varios
- Sí
Certificado energético
Detalles
399.000 €
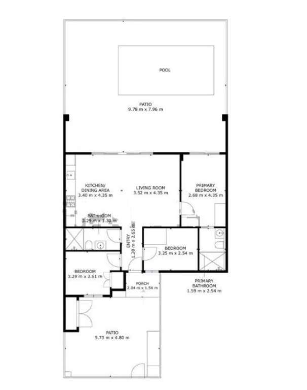
Descubre este espectacular y moderno bungalow en planta baja, ubicado en una de las mejores zonas de El Pilar de la Horadada, ¡a tan solo 400 metros de la playa! Un auténtico lujo para disfrutar del Mediterráneo a pocos pasos de casa. La vivienda ofrece una distribución funcional y luminosa: cuenta con 3 dormitorios (uno doble y dos individuales), 2 baños completos con plato de ducha, y un amplio salón-comedor con cocina americana, abierta e integrada para mayor comodidad y estilo. En el exterior, dispone de una amplia terraza con jardín privado, perfecta para relajarse, disfrutar de la zona chill out o darse un chapuzón en la piscina privada. Además, en la entrada encontrarás una segunda terraza ajardinada, ideal como rincón de bienvenida o para disfrutar del desayuno al aire libre. La propiedad incluye también plaza de garaje, un valor añadido para mayor confort y seguridad. Situada cerca de todos los servicios necesarios (supermercados, restaurantes, farmacias, etc.), esta vivienda es perfecta tanto como residencia habitual, vacacional o como inversión.
- 19/02/2026
- 90 m2
- 4.433,33 €/m2
- 3
- 2
Global Spain
Contactar
Compartir
Tu opinión














































