Ático en venta en Pilar de la Horadada zona Mil Palmeras

8
Ático en venta en Pilar de la Horadada zona Mil Palmeras
Datos básicos
  • SP-13475
  • 455.000
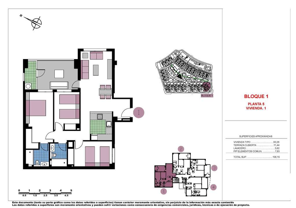
  • 106 m2(4.292 €/m2)
  • Alicante
  • Pilar de la Horadada
  • Mil Palmeras
Distribución e instalaciones
  • 3
  • 2
Varios
Certificado energético
  • B
Detalles
455.000
Apartamentos y Bungalows de Obra Nueva en Mil Palmeras Moderno complejo residencial en una ubicación privilegiada Descubra un nuevo e impresionante complejo residencial en la encantadora zona costera de Mil Palmeras, que ofrece una selección de apartamentos y bungalows de alta calidad diseñados para satisfacer los estándares de vida modernos. Situado a sólo 600 metros de las playas de Mil Palmeras, este complejo combina confort, estilo y comodidad. Amplios y elegantes apartamentos y bungalows Elija entre apartamentos de 2 o 3 dormitorios, cada uno con 2 cuartos de baño y amplias terrazas. También puede optar por bungalows de 2 dormitorios y 2 baños, disponibles en planta baja con jardín privado o en planta alta con solárium exclusivo. Acabados de alta calidad para una vida moderna Esta promoción ofrece características y acabados excepcionales: Carpintería exterior de PVC con rotura de puente térmico y doble acristalamiento «Climalit» de baja emisividad. Puertas de entrada blindadas para mayor seguridad. Baños equipados con lavabos, espejos y grifería moderna. Armarios empotrados con iluminación interior LED, cajones y barras de colgar. Suministro de agua caliente mediante aerotermia para una mayor eficiencia energética. Preinstalación de aire acondicionado y calefacción por conductos en salones y dormitorios. Servicios comunitarios exclusivos El complejo está totalmente cerrado y cuenta con: Preciosos jardines comunitarios. Piscinas de agua cristalina para los residentes. Plazas de aparcamiento subterráneo opcionales y trasteros para mayor comodidad. Ubicación privilegiada en Mil Palmeras Situada entre Campoamor y Torre de la Horadada, esta urbanización ofrece fácil acceso a los servicios locales, colegios, restaurantes e instalaciones deportivas abiertas todo el año. Mil Palmeras es conocida por su encantadora plaza del pueblo y su vibrante «callejón de los restaurantes», que ofrece diversas cocinas internacionales. Para los entusiastas de la naturaleza, el Parque Natural de Lo Monte, una reserva de aves protegida, y el Parque Natural de Río Seco ofrecen lugares perfectos para practicar senderismo y relajarse. Proximidad a los principales puntos de interés Aeropuerto Internacional de Murcia: 40 km (aprox. 45 minutos). Aeropuerto de Alicante: 75 km (aprox. 45 minutos). Campos de golf más cercanos: A menos de 10 km. Centros comerciales: A 8 km de Zenia Boulevard. Puertos deportivos: A 5 km de Torre de la Horadada. La casa de sus sueños le espera No pierda la oportunidad de tener una propiedad en este excepcional complejo residencial. Tanto si busca una casa de vacaciones como una residencia permanente, esta urbanización en Mil Palmeras lo tiene todo. Póngase en contacto con nosotros hoy mismo para obtener más información o para concertar una visita. 425
  • hace 20 días
  • 106 m2
  • 4.292,45 €/m2
  • 3
  • 2
Contactar
Compartir
Tu opinión
×Esta web utiliza cookies técnicas, de personalización y análisis, propias y de terceros, para facilitarle la navegación de forma anónima y analizar estadísticas del uso de la web. Consideramos que si continúa navegando, acepta su uso. Más información.