Villa en venta en Pilar de la Horadada zona parques de Andromeda
Datos básicos
- REDSP-68112
- 659.000 €
- 112 m2(5.884 €/m2)
- Alicante
- Pilar de la Horadada
- parques de Andromeda
Distribución e instalaciones
- 3
- 3
Varios
- Sí
Certificado energético
Detalles
659.000 €
Promoción boutique de viviendas de nueva construcción con piscina privada en Pilar de la Horadada
Residencia exclusiva en una ubicación privilegiada de la Costa Blanca
Descubra esta promoción boutique de nueva construcción de solo 10 viviendas exclusivas en Pilar de la Horadada, una encantadora localidad costera al sur de la Costa Blanca. Situado a las afueras de la localidad, este moderno proyecto ofrece vistas abiertas a zonas verdes y parques, a solo 2 km de las playas mediterráneas de Torre de la Horadada. Disfrute de la comodidad de tener todos los servicios esenciales a poca distancia, incluyendo supermercados, restaurantes, bancos, colegios y servicios sanitarios.
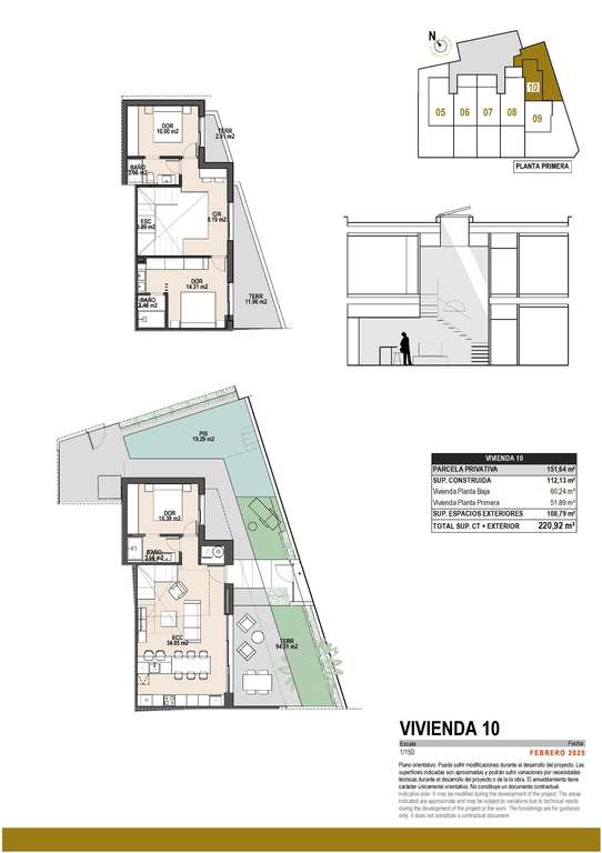
Diferentes distribuciones con espacios exteriores privados
Esta nueva promoción ofrece una variedad de distribuciones de 2 y 3 dormitorios para adaptarse a diferentes necesidades y estilos de vida:
Las viviendas de la planta baja cuentan con jardín privado, piscina con zona de playa y exteriores totalmente ajardinados con riego automático.
Las viviendas de la planta superior cuentan con solárium privado con cocina de verano, pérgola, aseo exterior y piscina privada con jacuzzi integrado, además de un trastero para bicicletas en la planta baja.
Las villas adosadas ofrecen amplios espacios interiores y exteriores con jardín y piscina privados, ideales para la vida familiar o estancias prolongadas.
Todas las viviendas incluyen una plaza de aparcamiento privada.
Características premium y acabados de alta calidad
Diseñadas pensando en la comodidad, la eficiencia y el estilo, todas las viviendas están equipadas con:
Aire acondicionado por conductos totalmente instalado
Persianas eléctricas y puertas de entrada reforzadas
Paquete de iluminación LED para zonas interiores y exteriores
Cocinas equipadas con electrodomésticos BOSCH o SIEMENS
Baños elegantes con calefacción por suelo radiante, espejos, muebles de baño y mamparas de ducha
Diseño moderno que maximiza la luz natural y la funcionalidad
Estas viviendas, cuidadosamente diseñadas, ofrecen una combinación perfecta entre el confort interior y la vida al aire libre, ideal para disfrutar del cálido clima mediterráneo durante todo el año.
Distancias clave:
Playas: 2 km
Campo de golf Lo Romero: 6 km
Centro comercial Dos Mares (San Javier): 10 km
Centro comercial Zenia Boulevard (Orihuela Costa): 12 km
Aeropuerto Internacional de Murcia: 40 km
Aeropuerto de Alicante: 70 km
Ideal para vivir o invertir
Con disponibilidad limitada y una ubicación privilegiada, esta nueva promoción en Pilar de la Horadada representa una fantástica oportunidad tanto para vivir de forma permanente como para invertir. Tanto si busca una casa de vacaciones, un lugar para jubilarse o una propiedad para alquilar, estas modernas viviendas le ofrecen todo lo que necesita.
Póngase en contacto con nosotros hoy mismo para asegurarse su nueva casa en la Costa Blanca.
- hace 11 días
- 112 m2
- 5.883,93 €/m2
- 3
- 3
Contactar
Compartir
Tu opinión































