Villa en venta en Pilar de la Horadada zona Torre de la Horadada
Datos básicos
- NB-14694
- 589.000 €
- 130 m2(4.531 €/m2)
- Alicante
- Pilar de la Horadada
- Torre de la Horadada
Distribución e instalaciones
- 3
- 3
Varios
- Sí
Certificado energético
Detalles
589.000 €
Exclusivas villas de nueva construcción a 300 m de la playa en Torre de la Horadada
Vida costera de lujo en una ubicación privilegiadaDescubra este exclusivo proyecto de villas de nueva construcción en Torre de la Horadada, una de las localidades costeras más cotizadas del sur de Alicante. Situadas a solo 300 m del mar Mediterráneo y a poca distancia de tiendas, restaurantes y servicios cotidianos, estas villas ofrecen una oportunidad excepcional para disfrutar del estilo de vida de la Costa Blanca. Torre de la Horadada es conocida por su ambiente relajado, su precioso paseo marítimo y sus playas de arena fina, lo que la convierte en un lugar ideal tanto para vivir como para pasar las vacaciones.
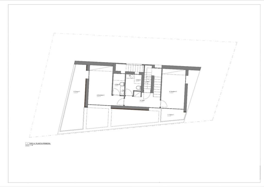
Última villa llave en mano totalmente equipadaEsta urbanización boutique consta de solo cuatro villas independientes, y la última unidad disponible está llave en mano y totalmente amueblada. La villa se entrega completa con muebles, electrodomésticos y aire acondicionado por conductos, lo que le permite mudarse inmediatamente y empezar a disfrutar de su nueva casa junto al mar. Situada en una parcela privada de aproximadamente 207 m2, la villa ofrece alrededor de 130 m2 de superficie construida distribuidos en planta baja, primera planta y solárium privado en la azotea.
Diseño moderno con piscina privada y soláriumLa villa presenta un diseño contemporáneo con espacios abiertos y luminosos. En el interior, encontrará tres amplios dormitorios y tres baños, un salón-comedor con cocina abierta y acceso directo al jardín y a la piscina privada. El solárium de la azotea ofrece un espacio ideal para relajarse, tomar el sol o disfrutar de las vistas, creando una zona de estar al aire libre perfecta durante todo el año.
Especificaciones de alta calidad y comodidadLa propiedad está construida con altos estándares e incluye una puerta de entrada reforzada, persianas motorizadas en los dormitorios, una piscina privada y un sistema básico de domótica para controles electrónicos. El aire acondicionado por conductos está completamente instalado, lo que garantiza el confort en todas las estaciones. Una plaza de aparcamiento privada dentro de la parcela añade comodidad y seguridad.
Torre de la Horadada y alrededoresTorre de la Horadada ofrece un encantador entorno costero con un largo paseo marítimo, puertos deportivos y una amplia gama de restaurantes, bares y tiendas locales. Las cercanas playas de Torre de la Horadada y Mil Palmeras se encuentran entre las mejores de la zona, ideales para nadar, practicar deportes acuáticos, snorkel y buceo. La zona está bien comunicada y rodeada de campos de golf, centros comerciales y opciones de ocio.
Distancias a los principales puntos de interésPlaya: 0,3 kmZona comercial Plaza Nueva: 0,2 kmLo Romero Golf: 7 kmPuerto deportivo de Torre de la Horadada: 1,5 kmAeropuerto de Murcia Corvera: 45 kmAeropuerto de Alicante: 50 km
Su nuevo hogar junto al Mediterráneo le esperaEsta villa llave en mano en Torre de la Horadada es una oportunidad única para adquirir una vivienda moderna a pocos pasos de la playa. Póngase en contacto con nosotros hoy mismo para concertar una visita y asegurarse esta excepcional villa de nueva construcción en la Costa Blanca.
Vida costera de lujo en una ubicación privilegiadaDescubra este exclusivo proyecto de villas de nueva construcción en Torre de la Horadada, una de las localidades costeras más cotizadas del sur de Alicante. Situadas a solo 300 m del mar Mediterráneo y a poca distancia de tiendas, restaurantes y servicios cotidianos, estas villas ofrecen una oportunidad excepcional para disfrutar del estilo de vida de la Costa Blanca. Torre de la Horadada es conocida por su ambiente relajado, su precioso paseo marítimo y sus playas de arena fina, lo que la convierte en un lugar ideal tanto para vivir como para pasar las vacaciones.
Última villa llave en mano totalmente equipadaEsta urbanización boutique consta de solo cuatro villas independientes, y la última unidad disponible está llave en mano y totalmente amueblada. La villa se entrega completa con muebles, electrodomésticos y aire acondicionado por conductos, lo que le permite mudarse inmediatamente y empezar a disfrutar de su nueva casa junto al mar. Situada en una parcela privada de aproximadamente 207 m2, la villa ofrece alrededor de 130 m2 de superficie construida distribuidos en planta baja, primera planta y solárium privado en la azotea.
Diseño moderno con piscina privada y soláriumLa villa presenta un diseño contemporáneo con espacios abiertos y luminosos. En el interior, encontrará tres amplios dormitorios y tres baños, un salón-comedor con cocina abierta y acceso directo al jardín y a la piscina privada. El solárium de la azotea ofrece un espacio ideal para relajarse, tomar el sol o disfrutar de las vistas, creando una zona de estar al aire libre perfecta durante todo el año.
Especificaciones de alta calidad y comodidadLa propiedad está construida con altos estándares e incluye una puerta de entrada reforzada, persianas motorizadas en los dormitorios, una piscina privada y un sistema básico de domótica para controles electrónicos. El aire acondicionado por conductos está completamente instalado, lo que garantiza el confort en todas las estaciones. Una plaza de aparcamiento privada dentro de la parcela añade comodidad y seguridad.
Torre de la Horadada y alrededoresTorre de la Horadada ofrece un encantador entorno costero con un largo paseo marítimo, puertos deportivos y una amplia gama de restaurantes, bares y tiendas locales. Las cercanas playas de Torre de la Horadada y Mil Palmeras se encuentran entre las mejores de la zona, ideales para nadar, practicar deportes acuáticos, snorkel y buceo. La zona está bien comunicada y rodeada de campos de golf, centros comerciales y opciones de ocio.
Distancias a los principales puntos de interésPlaya: 0,3 kmZona comercial Plaza Nueva: 0,2 kmLo Romero Golf: 7 kmPuerto deportivo de Torre de la Horadada: 1,5 kmAeropuerto de Murcia Corvera: 45 kmAeropuerto de Alicante: 50 km
Su nuevo hogar junto al Mediterráneo le esperaEsta villa llave en mano en Torre de la Horadada es una oportunidad única para adquirir una vivienda moderna a pocos pasos de la playa. Póngase en contacto con nosotros hoy mismo para concertar una visita y asegurarse esta excepcional villa de nueva construcción en la Costa Blanca.
- hace 6 días
- 130 m2
- 4.530,77 €/m2
- 3
- 3
Naranja Spain
Contactar
Compartir
Tu opinión



























