Casa rústica en venta en Polop
Datos básicos
- POLOP30032023
- 595.000 €
- 310 m2(1.919 €/m2)
- Alicante
- Polop
Distribución e instalaciones
- 3
- 3
- 1
Varios
- Sí
Certificado energético
Detalles
595.000 €
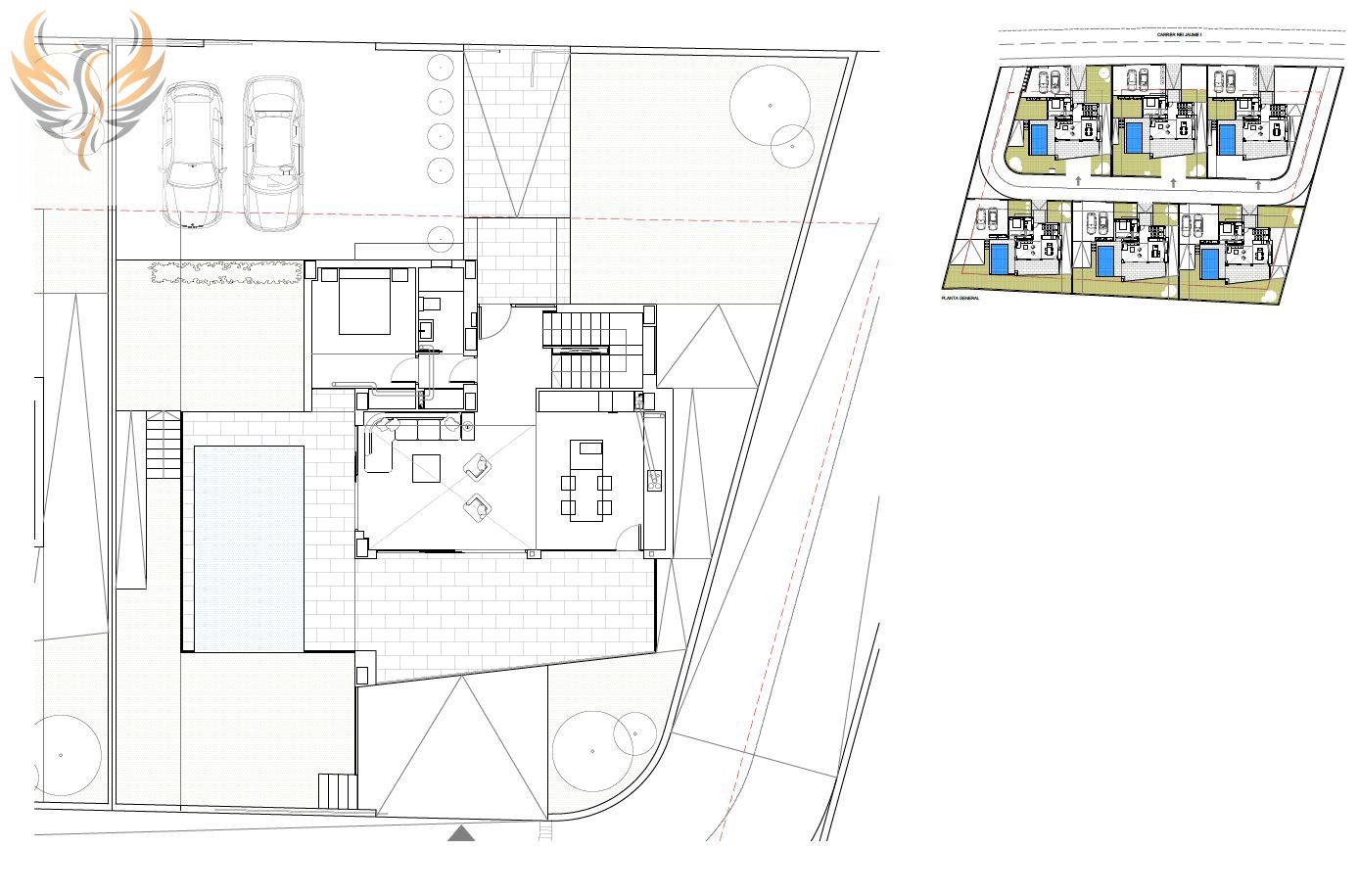
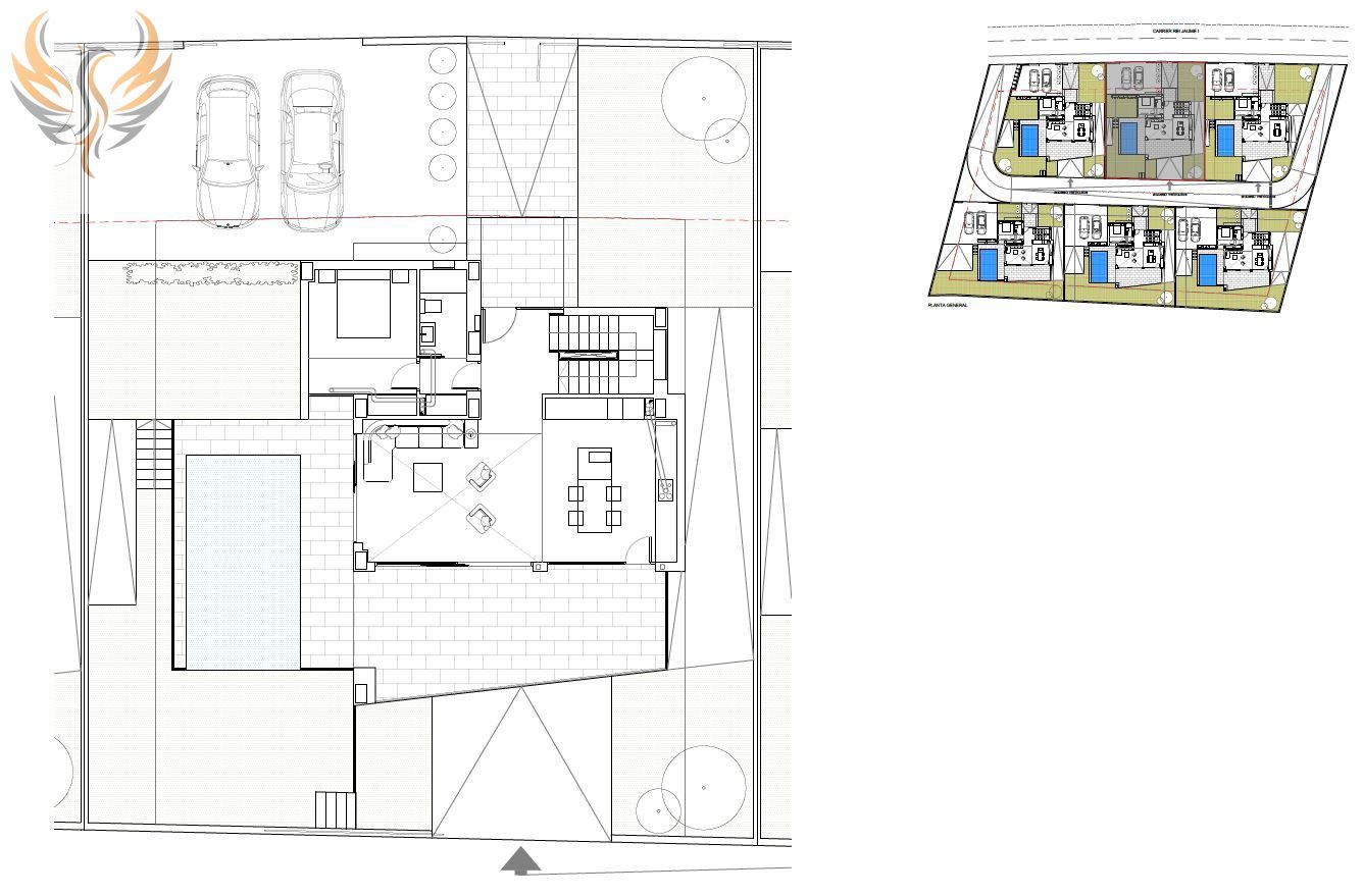
Conjunto de 6 viviendas unifamiliares, con superficie de solar de 3,085,00 m2, en régimen de propiedad horizontal, con viario interior común.
Cada una de las viviendas se implanta en parcela privativa de superficie aproximada 425,00 m2, con piscina privada.
Dos modelos diferentes:
En la fila superior, viviendas de planta baja,planta piso, y una planta semisótano de usomúltiple aprovechando la pendiente delterreno.
En la fila inferior, viviendas de sóloplanta baja (para evitar obstáculo de vistas alas viviendas superiores) y una plantasemisótano de uso múltiple aprovechando la
pendiente del terreno.
Todas las viviendas tienen la siguiente superficie: sobre rasante, 154,16 m2c por unidad (máximo del aprovechamiento) y bajo rasante en semisótano 122,27 m2 por unidad.
Villa A1. con 3 Dormitorios y 3 Baños. Superficie Util 293,85 m2. Parcela 413,25 m2. Precio 650.000 €
Villa A2. con 3 Dormitorios y 3 Baños. Superficie Util 293,85 m2. Parcela 418,30 m2. Precio 650.000 €
Villa A3. con 3 Dormitorios y 3 Baños. Superficie Util 293,85 m2. Parcela 416,95 m2. Precio 650.000 €
Villa B4. con 3 Dormitorios y 3 Baños. Superficie Util 293,85 m2. Parcela 422,20 m2. Precio 595.000 €
Villa B5. con 3 Dormitorios y 3 Baños. Superficie Util 293,85 m2. Parcela 393,55 m2. Precio 595.000 €
Villa B6. con 3 Dormitorios y 3 Baños. Superficie Util 293,85 m2. Parcela 434,05 m2. Precio 595.000 €
Consultar Entrega de Llaves !!!
- 19/05/2023
- 310 m2
- 1.919,35 €/m2
- 3
- 3
Marco Antonio Costa
Contactar
Compartir
Tu opinión
































