Villa en venta en Polop zona PAU1
Datos básicos
- SP-57332
- 563.160 €
- 121 m2(4.654 €/m2)
- Alicante
- Polop
- PAU1
Distribución e instalaciones
- 3
- 2
Varios
- Sí
Certificado energético
- B
Detalles
563.160 €
PAREADOS DE OBRA NUEVA EN POLOP
Adosados y villas pareadas modernas de obra nueva con varias terrazas y solarium, totalmente vallados, con zona de aparcamiento para vehículos y piscina privada en Polop.
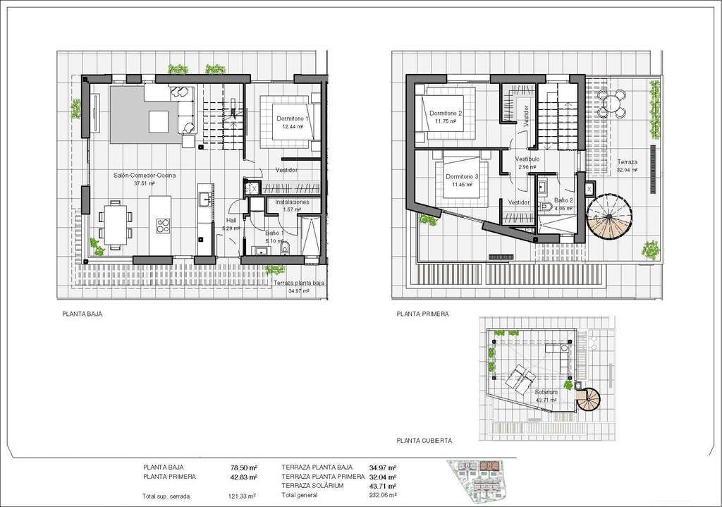
Viviendas modernas con 3 amplios dormitorios con armarios empotrados (el principal en planta baja, con baño y vestidor en suite), 2 amplios baños, gran salón-comedor con cocina abierta, amplias terrazas.
Cocina equipada con muebles bajos y encimeras de silestone, con vitrocerámica, horno, campana extractora, frigorífico, lavadora, lavavajillas y aerotermo.
Primeras calidades: carpintería interior en madera y laminados lacados en blanco, carpintería exterior en pvc gris antracita con doble acristalamiento y rotura de puente térmico, y persianas automáticas con lamas de aluminio, suelos cerámicos de 1ª calidad antideslizantes, paredes lisas, puerta de seguridad con 5 puntos de anclaje, amplios armarios empotrados.
La ciudad de Polop ofrece un sorprendente abanico de opciones para los amantes de la vida al aire libre rodeados de naturaleza y una paz inigualable.
El municipio disfruta de un clima mediterráneo con temperaturas más frescas y aire más limpio, situado a menos de 10 kilómetros de Benidorm, Altea y sus playas.
Se extiende desde los ríos Guadalest y Algar hasta la localidad de Villajoyosa, incluyendo las playas del Albir y Benidorm; hacia el interior limita con Callosa y Guadalest.
425
- hace 5 días
- 121 m2
- 4.654,21 €/m2
- 3
- 2
Global Spain
Contactar
Compartir
Tu opinión







































