Apartamento en venta en Relleu zona pueblo
Datos básicos
- 70269
- 185.000 €
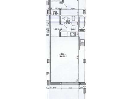
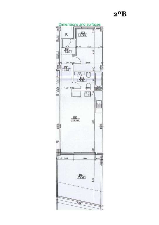
- 70 m2(2.643 €/m2)
- Alicante
- Relleu
- pueblo
Distribución e instalaciones
- 1
- 1
Varios
- Sí
Certificado energético
Detalles
185.000 €
Complejo residencial en Relleu con piscina comunitaria y vistas despejadas
Se trata de una renovación completa de un edificio construido hace varios años que quedó sin terminar. Es el lugar ideal para aquellos que desean una vivienda de calidad en una ubicación privilegiada con todos los servicios cerca.
El edificio tiene 7 plantas con 2 escaleras y 2 ascensores. En el sótano hay 69 plazas de aparcamiento y 42 trasteros. En la planta baja hay una piscina cubierta climatizada, una gran sala para uso de todos los propietarios y dos locales comerciales. En la azotea hay una piscina exterior con terrazas.
Disfrute cocinando en la moderna cocina y en los salones con impresionantes vistas, y relájese en la amplia terraza con vistas a la impresionante naturaleza de Relleu.
Desde las terrazas hay unas vistas espectaculares y completamente despejadas. Las montañas, el nuevo lago y las zonas deportivas del pueblo son preciosas. La orientación es sureste, por lo que todas las terrazas tienen sol desde primera hora de la mañana hasta primera hora de la tarde. Ver el amanecer desde su terraza puede ser una experiencia maravillosa.
Posibilidad de plaza de aparcamiento subterráneo y trastero con un coste adicional.
Relájese
- En la piscina: sumérjase en un oasis de serenidad y deje atrás el estrés diario mientras nada en nuestra refrescante piscina.
- Sauna: libere toda la tensión y disfrute de nuestra lujosa sauna. El calor relajante relaja los músculos y purifica la mente, dejándole completamente rejuvenecido después de cada sesión.
Haga ejercicio
- Gimnasio: alcance sus objetivos de fitness sin salir de la comodidad de su hogar. Nuestro gimnasio de última generación está equipado con lo último en equipamiento, lo que le da la libertad de entrenar a su propio ritmo y a su manera.
Tanto si busca un entrenamiento intenso, un baño relajante o simplemente un momento de paz y reflexión, nuestro complejo de apartamentos le ofrece todo lo que necesita para llevar un estilo de vida equilibrado.
Relleu es un hermoso y tranquilo pueblo de montaña donde conviven personas de diferentes nacionalidades. Relleu se encuentra a 15 km de la autopista del Mediterráneo, a 18 km de la playa de Villajoyosa y a 25 km de la playa de Benidorm.
El pueblo de Relleu es el lugar perfecto para los amantes de la montaña, el ciclismo, el senderismo, el barranquismo y otros deportes. La ruta del embalse, con su famoso puente peatonal, conduce directamente al pueblo. Estas montañas son el escenario ideal para practicar motociclismo o ciclismo.
278
- hace 19 días
- 70 m2
- 2.642,86 €/m2
- 1
- 1
Contactar
Compartir
Tu opinión











