Apartamento en venta en Relleu zona pueblo
Datos básicos
- SP-16319
- 175.000 €
- 70 m2(2.500 €/m2)
- Alicante
- Relleu
- pueblo
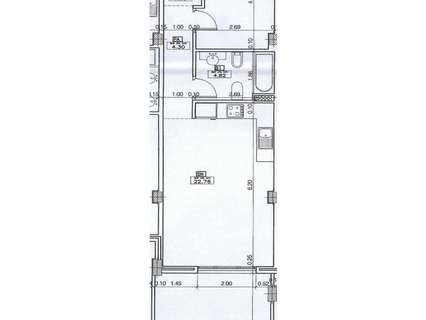
Distribución e instalaciones
- 1
- 1
Varios
- Sí
Certificado energético
- B
Detalles
175.000 €
RESIDENCIAL DE OBRA NUEVA EN RELLEU
Residencial de obra nueva en Relleu es el lugar ideal para aquellos que quieren tener una vivienda de calidad en un lugar muy bonito y con todos los servicios al lado.
El edificio tiene 7 plantas con 2 escaleras y sus 2 ascensores. En el sótano hay 69 plazas de aparcamiento y 42 trasteros. En la planta baja está la piscina cubierta climatizada, una gran sala para uso de todos los propietarios y dos locales comerciales, en la azotea está la piscina exterior con sus terrazas.
Disfrute cocinando en la moderna cocina y también en los salones con impresionantes vistas, y relájese en la amplia terraza con vistas a la impresionante naturaleza de Relleu.
Desde las terrazas hay unas vistas espectaculares y completamente despejadas. Son preciosas las montañas, el nuevo lago y las zonas deportivas del pueblo. La orientación es sureste por lo que todas las terrazas tienen sol desde primera hora de la mañana hasta primera hora de la tarde. Ver el amanecer desde su terraza puede ser una experiencia maravillosa.
Posibilidad de plaza de aparcamiento subterráneo y trastero con coste adicional.
Relax
- En la piscina: Sumérjase en un oasis de serenidad y deje atrás el estrés diario mientras nada en nuestra refrescante piscina.
- Sauna: Libérese de toda tensión y deléitese en nuestra lujosa sauna. El calor relajante relaja los músculos y purifica la mente, rejuveneciendo por completo después de cada sesión.
Ejercicio
- Gimnasio: Alcance sus objetivos de fitness sin salir de la comodidad de su casa. Nuestro gimnasio de última generación está equipado con los aparatos más modernos, dándole la libertad de entrenar a su ritmo y a su manera.
Tanto si busca un entrenamiento intenso, una relajante sesión de natación o simplemente un momento de paz y reflexión, nuestro complejo de apartamentos le ofrece todo lo que necesita para un estilo de vida equilibrado.
Relleu es un bonito y tranquilo pueblo de montaña donde vive gente de diferentes nacionalidades. Relleu está a 15 km de la autovía del Mediterráneo, a 18 km de la playa de Villajoyosa y a 25 km de la playa de Benidorm.
El pueblo de Relleu es el lugar perfecto para los amantes de la montaña, ciclismo, senderismo, barranquismo u otros deportes. Hasta el mismo llega la ruta del pantano con su famosa pasarela. Estas montañas son el entorno ideal para montar en moto o bicicleta.
- hace 4 días
- 70 m2
- 2.500 €/m2
- 1
- 1
Global Spain
Contactar
Compartir
Tu opinión











