Apartamento en venta en Rojales zona Pueblo
Datos básicos
- SP-23553
- 261.900 €
- 76 m2(3.446 €/m2)
- Alicante
- Rojales
- Pueblo
Distribución e instalaciones
- 2
- 2
Certificado energético
- B
Detalles
261.900 €
Apartamentos de nueva construcción en Rojales, cerca del golf y las playas
Vida moderna en una zona en crecimiento de Rojales
Esta nueva promoción residencial se encuentra en una moderna zona de expansión de la encantadora localidad de Rojales, en el corazón de la Costa Blanca Sur. El proyecto consta de 14 viviendas de nueva construcción en su primera fase, diseñadas para ofrecer comodidad, calidad y una excelente ubicación. La zona residencial permite acceder fácilmente a pie a todos los servicios cotidianos, como supermercados, restaurantes, bancos y farmacias, lo que la hace ideal tanto para vivir como para pasar las vacaciones.
Posibilidad de elegir entre viviendas en planta baja o en planta alta
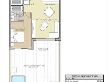
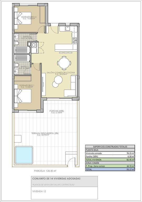
La promoción ofrece apartamentos contemporáneos de 2 dormitorios y 2 baños, incluyendo un dormitorio principal con baño en suite. Los compradores pueden elegir entre propiedades en planta baja con amplias terrazas privadas, perfectas para disfrutar del aire libre, o viviendas en la última planta con terraza y solárium privado, ideales para tomar el sol y relajarse. A algunos de los apartamentos de la última planta se puede acceder en ascensor, lo que añade comodidad y accesibilidad.
Acabados de calidad y eficiencia energética
Todas las viviendas están construidas con materiales de alta calidad y especificaciones modernas. Los baños incluyen calefacción por suelo radiante, muebles empotrados con espejos y mamparas de ducha. Las cocinas están completamente amuebladas y equipadas con electrodomésticos, ofreciendo un diseño moderno y funcional. Se incluyen persianas motorizadas, junto con la preinstalación para aire acondicionado por conductos. Cada propiedad se beneficia además de la instalación de paneles solares fotovoltaicos de 1 kW, lo que contribuye a mejorar la eficiencia energética y a reducir los gastos de funcionamiento, así como de la preinstalación para un jacuzzi privado.
Aparcamiento y comodidad comunitaria
Cada vivienda incluye una plaza de aparcamiento privada en el garaje subterráneo, lo que proporciona seguridad y comodidad. El diseño residencial se centra en la practicidad y la vida moderna, ofreciendo un entorno tranquilo en una nueva zona urbana bien planificada de Rojales.
Estilo de vida y alrededores de Rojales
Rojales es una localidad tradicional española conocida por su ambiente acogedor y su excelente calidad de vida. Ofrece todos los servicios esenciales, así como un parque natural cercano ideal para pasear y realizar actividades al aire libre. La zona es especialmente popular entre los amantes del golf, con el campo de golf La Marquesa a menos de 2 km y otros dos campos de golf a poca distancia en coche. Las playas con bandera azul de Guardamar del Segura están a solo 7 km y ofrecen largas playas de arena y un bonito paseo marítimo. Los parques acuáticos y las instalaciones de ocio de Rojales y Torrevieja también están cerca.
Distancias a los principales puntos de interés
Campo de golf La Marquesa: 2 km
Playas de Guardamar: 7 km
Torrevieja: 12 km
Aeropuerto de Alicante: 45 km
Aeropuerto de Murcia Corvera: 55 km
Su nuevo hogar en la Costa Blanca
Estos apartamentos de nueva construcción en Rojales ofrecen una excelente combinación de ubicación, calidad y estilo de vida. Póngase en contacto con nosotros hoy mismo para recibir más información o concertar una visita y asegurarse su nuevo hogar en la Costa Blanca Sur.
- hace 3 horas
- 76 m2
- 3.446,05 €/m2
- 2
- 2
Global Spain
Contactar
Compartir
Tu opinión
















