Bungalow en venta en Rojales zona Pueblo
Datos básicos
- NBZH-63881
- 280.900 €
- 76 m2(3.696 €/m2)
- Alicante
- Rojales
- Pueblo
Distribución e instalaciones
- 2
- 2
Certificado energético
Detalles
280.900 €
Este bungalow de nueva construcción en la última planta en Rojales ofrece una excelente oportunidad para disfrutar de la moderna vida mediterránea con amplios espacios exteriores. Ubicado en una nueva zona residencial en expansión de Rojales , este moderno desarrollo combina comodidad, conveniencia y estilo de vida, lo que lo convierte en ideal como vivienda permanente, propiedad vacacional o inversión en la Costa Blanca Sur .
El complejo residencial consta de tan solo 14 modernos apartamentos en su primera fase , lo que crea un entorno tranquilo y de baja densidad de población, a la vez que se mantiene a poca distancia a pie de los servicios diarios . Supermercados, restaurantes, cafeterías, bancos y farmacias se encuentran en las inmediaciones, lo que permite a los residentes disfrutar de un estilo de vida práctico sin depender del coche.
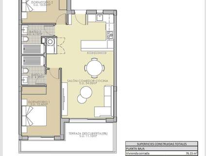
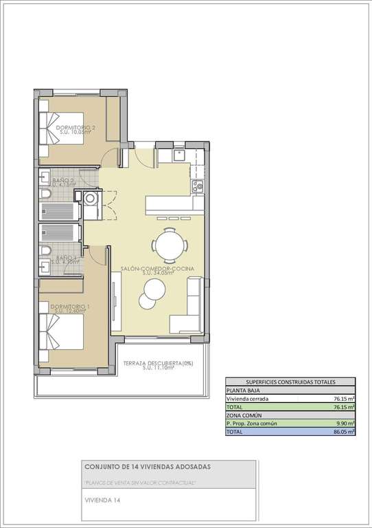
Este bungalow en la última planta cuenta con 2 amplios dormitorios y 2 baños , incluyendo el dormitorio principal con baño en suite . La distribución se ha diseñado para maximizar la luz natural y la integración de la vida interior y exterior. Uno de los aspectos más destacados de esta propiedad es la amplia terraza privada y el impresionante solárium , que ofrece amplio espacio para tomar el sol, cenar al aire libre, relajarse o recibir invitados. El solárium también cuenta con preinstalación para un jacuzzi privado , lo que lo convierte en el espacio perfecto para disfrutar del clima de la Costa Blanca durante todo el año.
Algunos de los apartamentos de la planta superior cuentan con ascensor , lo que aumenta la comodidad y la accesibilidad. En el interior, la propiedad cuenta con acabados de alta calidad, con cocinas modernas completamente amuebladas y equipadas con electrodomésticos , así como elegantes baños con calefacción por suelo radiante, muebles empotrados, espejos y mamparas de ducha . Otras características incluyen persianas motorizadas , preinstalación de aire acondicionado por conductos y paneles solares fotovoltaicos de 1 kW , lo que contribuye a mejorar la eficiencia energética y reducir los costes de funcionamiento.
El apartamento también incluye una plaza de aparcamiento privada en el garaje subterráneo , lo que garantiza seguridad y comodidad.
Rojales es una ciudad española consolidada, conocida por su ambiente acogedor y excelente calidad de vida. El campo de golf La Marquesa está a menos de 2 km , lo que la convierte en una opción atractiva para los amantes del golf, mientras que las playas con bandera azul de Guardamar del Segura están a solo 7 km . Torrevieja, parques acuáticos e instalaciones de ocio se encuentran a poca distancia en coche, y el aeropuerto de Alicante está a solo 45 km .
Este bungalow en planta alta con solárium en Rojales es la opción ideal para quienes buscan espacio, sol y una ubicación privilegiada en la Costa Blanca. Contáctenos hoy mismo para más información o para concertar una visita.
El complejo residencial consta de tan solo 14 modernos apartamentos en su primera fase , lo que crea un entorno tranquilo y de baja densidad de población, a la vez que se mantiene a poca distancia a pie de los servicios diarios . Supermercados, restaurantes, cafeterías, bancos y farmacias se encuentran en las inmediaciones, lo que permite a los residentes disfrutar de un estilo de vida práctico sin depender del coche.
Este bungalow en la última planta cuenta con 2 amplios dormitorios y 2 baños , incluyendo el dormitorio principal con baño en suite . La distribución se ha diseñado para maximizar la luz natural y la integración de la vida interior y exterior. Uno de los aspectos más destacados de esta propiedad es la amplia terraza privada y el impresionante solárium , que ofrece amplio espacio para tomar el sol, cenar al aire libre, relajarse o recibir invitados. El solárium también cuenta con preinstalación para un jacuzzi privado , lo que lo convierte en el espacio perfecto para disfrutar del clima de la Costa Blanca durante todo el año.
Algunos de los apartamentos de la planta superior cuentan con ascensor , lo que aumenta la comodidad y la accesibilidad. En el interior, la propiedad cuenta con acabados de alta calidad, con cocinas modernas completamente amuebladas y equipadas con electrodomésticos , así como elegantes baños con calefacción por suelo radiante, muebles empotrados, espejos y mamparas de ducha . Otras características incluyen persianas motorizadas , preinstalación de aire acondicionado por conductos y paneles solares fotovoltaicos de 1 kW , lo que contribuye a mejorar la eficiencia energética y reducir los costes de funcionamiento.
El apartamento también incluye una plaza de aparcamiento privada en el garaje subterráneo , lo que garantiza seguridad y comodidad.
Rojales es una ciudad española consolidada, conocida por su ambiente acogedor y excelente calidad de vida. El campo de golf La Marquesa está a menos de 2 km , lo que la convierte en una opción atractiva para los amantes del golf, mientras que las playas con bandera azul de Guardamar del Segura están a solo 7 km . Torrevieja, parques acuáticos e instalaciones de ocio se encuentran a poca distancia en coche, y el aeropuerto de Alicante está a solo 45 km .
Este bungalow en planta alta con solárium en Rojales es la opción ideal para quienes buscan espacio, sol y una ubicación privilegiada en la Costa Blanca. Contáctenos hoy mismo para más información o para concertar una visita.
- 23/12/2025
- 76 m2
- 3.696,05 €/m2
- 2
- 2
Zebra Homes
Contactar
Compartir
Tu opinión

















