Casa en venta en Rojales zona Ciudad Quesada
Datos básicos
- EA-57039
- 435.000 €
- 134 m2(3.246 €/m2)
- Alicante
- Rojales
- Ciudad Quesada
Distribución e instalaciones
- 3
- 3
Varios
- Sí
Certificado energético
Detalles
435.000 €
Propiedad Exclusiva en Ciudad Quesada – Lujo, Confort y Estilo
En EL Arfero Real Estate , estamos encantados de presentar esta impresionante villa adosada , ubicada en el prestigioso complejo Euromarina en el corazón de Ciudad Quesada. Construida en 2019, esta propiedad combina un diseño moderno con acabados de alta calidad, ofreciendo un estilo de vida excepcional en la soleada Costa Blanca.
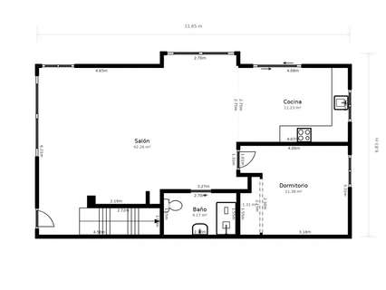
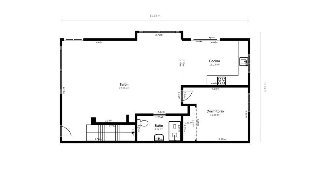
Detalles de la propiedad: Con una generosa superficie construida de 134 m² , esta casa presenta una distribución cuidadosamente diseñada, perfecta tanto para vivir de forma permanente como para pasar las vacaciones. Las características principales incluyen:
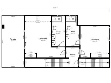
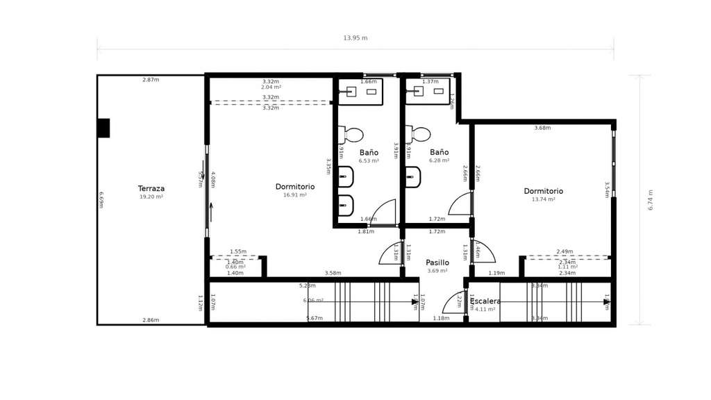
3 amplios dormitorios con abundante luz natural y amplio espacio de almacenamiento.
3 baños modernos , incluido uno en suite con acabados de lujo.
Una sala de estar luminosa y acogedora, ideal para relajarse y pasar tiempo en familia.
Una elegante cocina abierta , totalmente equipada y diseñada para la comodidad y la elegancia.
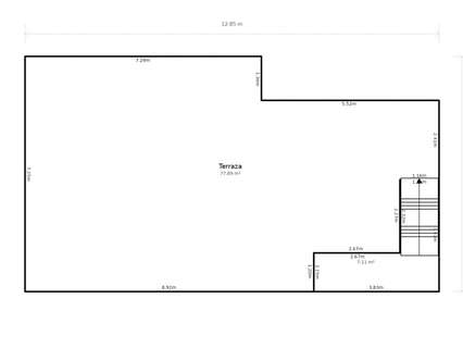
Una espectacular terraza grande en la azotea , perfecta para tomar el sol mediterráneo, cenar al aire libre y disfrutar de hermosas vistas.
Aire acondicionado central en todas las habitaciones, garantizando confort durante todo el año.
Espacios y comodidades al aire libre: El complejo ofrece áreas comunes bellamente mantenidas que elevan su experiencia de vida:
Un exuberante jardín y zonas verdes, perfectos para relajarse.
Acceso a una gran piscina comunitaria , completa con duchas al aire libre.
Una plaza de aparcamiento privada en la propiedad.
Amplio espacio de almacenamiento , tanto en interiores como en exteriores, para todas sus necesidades.
Ubicación y alrededores: Ciudad Quesada es una de las zonas más cotizadas de la Costa Blanca, famosa por su vibrante ambiente, sus excelentes servicios y su proximidad a impresionantes playas y campos de golf. Hay tiendas, restaurantes e instalaciones médicas a poca distancia a pie, mientras que el aeropuerto de Alicante está a solo 40 minutos en coche.
Esta casa ofrece una combinación única de lujo, comodidad y una ubicación inmejorable.
No deje pasar esta oportunidad. Póngase en contacto con nosotros hoy mismo para obtener más información o programar una visita. ¡La casa de sus sueños en la Costa Blanca le espera!
En EL Arfero Real Estate , estamos encantados de presentar esta impresionante villa adosada , ubicada en el prestigioso complejo Euromarina en el corazón de Ciudad Quesada. Construida en 2019, esta propiedad combina un diseño moderno con acabados de alta calidad, ofreciendo un estilo de vida excepcional en la soleada Costa Blanca.
Detalles de la propiedad: Con una generosa superficie construida de 134 m² , esta casa presenta una distribución cuidadosamente diseñada, perfecta tanto para vivir de forma permanente como para pasar las vacaciones. Las características principales incluyen:
3 amplios dormitorios con abundante luz natural y amplio espacio de almacenamiento.
3 baños modernos , incluido uno en suite con acabados de lujo.
Una sala de estar luminosa y acogedora, ideal para relajarse y pasar tiempo en familia.
Una elegante cocina abierta , totalmente equipada y diseñada para la comodidad y la elegancia.
Una espectacular terraza grande en la azotea , perfecta para tomar el sol mediterráneo, cenar al aire libre y disfrutar de hermosas vistas.
Aire acondicionado central en todas las habitaciones, garantizando confort durante todo el año.
Espacios y comodidades al aire libre: El complejo ofrece áreas comunes bellamente mantenidas que elevan su experiencia de vida:
Un exuberante jardín y zonas verdes, perfectos para relajarse.
Acceso a una gran piscina comunitaria , completa con duchas al aire libre.
Una plaza de aparcamiento privada en la propiedad.
Amplio espacio de almacenamiento , tanto en interiores como en exteriores, para todas sus necesidades.
Ubicación y alrededores: Ciudad Quesada es una de las zonas más cotizadas de la Costa Blanca, famosa por su vibrante ambiente, sus excelentes servicios y su proximidad a impresionantes playas y campos de golf. Hay tiendas, restaurantes e instalaciones médicas a poca distancia a pie, mientras que el aeropuerto de Alicante está a solo 40 minutos en coche.
Esta casa ofrece una combinación única de lujo, comodidad y una ubicación inmejorable.
No deje pasar esta oportunidad. Póngase en contacto con nosotros hoy mismo para obtener más información o programar una visita. ¡La casa de sus sueños en la Costa Blanca le espera!
- hace 4 días
- 134 m2
- 3.246,27 €/m2
- 3
- 3
Global Spain
Contactar
Compartir
Tu opinión










































