Planta baja en venta en Rojales zona 03170
Datos básicos
- MI-64953
- 399.000 €
- 105 m2(3.800 €/m2)
- Alicante
- Rojales
- 03170
Distribución e instalaciones
- 3
- 2
Varios
- Sí
Certificado energético
Detalles
399.000 €
Bienvenidos a un exclusivo conjunto de apartamentos en la acogedora localidad de Rojales. Este residencial combina el diseño moderno con la funcionalidad, ofreciendo espacios que promueven un estilo de vida cómodo y elegante.
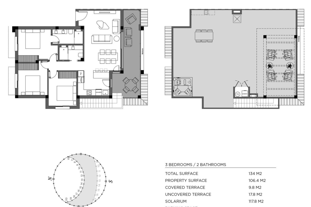
Descubra estos excepcionales apartamentos diseñados para maximizar la funcionalidad. Con 3 dormitorios y 2 baños, ofrecen todo lo necesario para un confort diario óptimo. El amplio salón-comedor, con una cocina americana, crea un ambiente cálido y contemporáneo, perfecto para disfrutar de momentos memorables con tus seres queridos.
Los apartamentos están disponibles en dos configuraciones: planta baja con garden privado o una primera planta con solarium. Ambas opciones ofrecen espacios exteriores ideales para relajarse y disfrutar de la privacidad. Cada vivienda incluye una large-parking, asegurando comodidad y seguridad para todos los residentes.
El complejo cuenta con una impresionante swimming-pool rodeada de exquisitas zonas comunes, creando un auténtico refugio de serenidad. Este oasis está cuidadosamente diseñado para fomentar la relajación y el disfrute, permitiendo a los residentes convivir en un entorno pacífico y armonioso.
La ubicación estratégica dentro de Rojales asegura la cercanía a todos los servicios necesarios, como supermercados, restaurantes, centros médicos y opciones de entretenimiento. A solo 10 minutos de las impresionantes playas y con fácil acceso a ciudades vecinas, así como a solo 35 minutos del aeropuerto, Rojales se convierte en una elección perfecta para quienes desean una vida cómoda y de alta calidad.
Descubra estos excepcionales apartamentos diseñados para maximizar la funcionalidad. Con 3 dormitorios y 2 baños, ofrecen todo lo necesario para un confort diario óptimo. El amplio salón-comedor, con una cocina americana, crea un ambiente cálido y contemporáneo, perfecto para disfrutar de momentos memorables con tus seres queridos.
Los apartamentos están disponibles en dos configuraciones: planta baja con garden privado o una primera planta con solarium. Ambas opciones ofrecen espacios exteriores ideales para relajarse y disfrutar de la privacidad. Cada vivienda incluye una large-parking, asegurando comodidad y seguridad para todos los residentes.
El complejo cuenta con una impresionante swimming-pool rodeada de exquisitas zonas comunes, creando un auténtico refugio de serenidad. Este oasis está cuidadosamente diseñado para fomentar la relajación y el disfrute, permitiendo a los residentes convivir en un entorno pacífico y armonioso.
La ubicación estratégica dentro de Rojales asegura la cercanía a todos los servicios necesarios, como supermercados, restaurantes, centros médicos y opciones de entretenimiento. A solo 10 minutos de las impresionantes playas y con fácil acceso a ciudades vecinas, así como a solo 35 minutos del aeropuerto, Rojales se convierte en una elección perfecta para quienes desean una vida cómoda y de alta calidad.
- 22/02/2026
- 105 m2
- 3.800 €/m2
- 3
- 2
Brillance Homes
Contactar
Compartir
Tu opinión
















