Villa en venta en Rojales zona Ciudad Quesada
Datos básicos
- M-89563
- 770.000 €
- 115 m2(6.696 €/m2)
- Alicante
- Rojales
- Ciudad Quesada
Distribución e instalaciones
- 3
- 3
Varios
- Sí
Certificado energético
- B
Detalles
770.000 €
Exclusivas Villas de Obra Nueva en Ciudad Quesada – Diseño, Confort y Ubicación Privilegiada
Viviendas de Alta Calidad en un Entorno PrivilegiadoDescubra estas 7 impresionantes villas independientes en Ciudad Quesada - Rojales, una de las zonas más codiciadas de la Costa Blanca Sur. Con un diseño moderno y elegante, estas viviendas están pensadas para quienes buscan un hogar de lujo, ya sea como residencia habitual o casa de vacaciones.
Ubicadas en un entorno natural privilegiado, cerca de los Lagos Salados de La Mata y Torrevieja, estas villas disfrutan de un microclima único que garantiza una calidad de vida excepcional durante todo el año.
Diferentes Modelos para ElegirEl residencial ofrece dos tipos de villas, adaptadas a diferentes necesidades y estilos de vida:
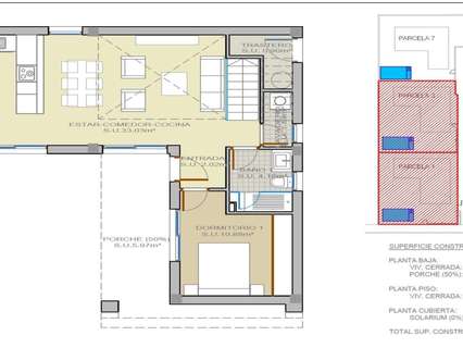
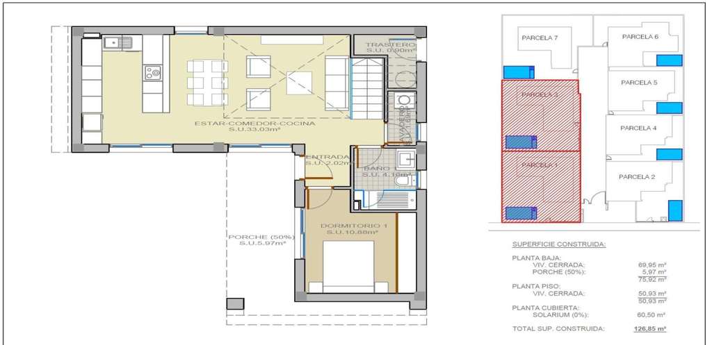
Villas de dos plantas con 3 dormitorios dobles y 3 baños completos.Villas de una sola planta con 3 dormitorios y 2 baños.
Todas las viviendas cuentan con:
Solárium privado en la azotea, ideal para disfrutar del sol y las vistas panorámicas.Piscina privada y jardín de diseño, perfectos para el relax y el entretenimiento.Plaza de aparcamiento privada.Además, hay disponible una casa piloto completamente equipada, donde podrá apreciar la calidad de los materiales y los acabados de lujo.
Equipamiento y Acabados de Alta GamaEstas villas han sido diseñadas para garantizar el máximo confort y eficiencia energética:
Cocina totalmente equipada con electrodomésticos incluidos.Preinstalación de aire acondicionado por conductos.Amplios espacios abiertos y grandes ventanales, que proporcionan una excelente iluminación natural.Acabados modernos y materiales de alta calidad en toda la vivienda.
Ubicación Estratégica y Conexiones CercanasCiudad Quesada es una urbanización consolidada con todos los servicios necesarios para el día a día: supermercados, restaurantes, centros de salud y zonas de ocio. Además, su ubicación permite un acceso rápido a los principales puntos de interés de la zona:
Playas de Guardamar del Segura – 5 km.Supermercado más cercano – 500 m.Hospital de Torrevieja – 6 km.Aeropuerto de Alicante – 29 km.
Descubra su Nueva Vivienda en Ciudad QuesadaSi busca una villa moderna, espaciosa y bien ubicada, estas viviendas son la opción ideal. No pierda esta oportunidad y contáctenos hoy mismo para obtener más información o programar una visita a la casa piloto.
Viviendas de Alta Calidad en un Entorno PrivilegiadoDescubra estas 7 impresionantes villas independientes en Ciudad Quesada - Rojales, una de las zonas más codiciadas de la Costa Blanca Sur. Con un diseño moderno y elegante, estas viviendas están pensadas para quienes buscan un hogar de lujo, ya sea como residencia habitual o casa de vacaciones.
Ubicadas en un entorno natural privilegiado, cerca de los Lagos Salados de La Mata y Torrevieja, estas villas disfrutan de un microclima único que garantiza una calidad de vida excepcional durante todo el año.
Diferentes Modelos para ElegirEl residencial ofrece dos tipos de villas, adaptadas a diferentes necesidades y estilos de vida:
Villas de dos plantas con 3 dormitorios dobles y 3 baños completos.Villas de una sola planta con 3 dormitorios y 2 baños.
Todas las viviendas cuentan con:
Solárium privado en la azotea, ideal para disfrutar del sol y las vistas panorámicas.Piscina privada y jardín de diseño, perfectos para el relax y el entretenimiento.Plaza de aparcamiento privada.Además, hay disponible una casa piloto completamente equipada, donde podrá apreciar la calidad de los materiales y los acabados de lujo.
Equipamiento y Acabados de Alta GamaEstas villas han sido diseñadas para garantizar el máximo confort y eficiencia energética:
Cocina totalmente equipada con electrodomésticos incluidos.Preinstalación de aire acondicionado por conductos.Amplios espacios abiertos y grandes ventanales, que proporcionan una excelente iluminación natural.Acabados modernos y materiales de alta calidad en toda la vivienda.
Ubicación Estratégica y Conexiones CercanasCiudad Quesada es una urbanización consolidada con todos los servicios necesarios para el día a día: supermercados, restaurantes, centros de salud y zonas de ocio. Además, su ubicación permite un acceso rápido a los principales puntos de interés de la zona:
Playas de Guardamar del Segura – 5 km.Supermercado más cercano – 500 m.Hospital de Torrevieja – 6 km.Aeropuerto de Alicante – 29 km.
Descubra su Nueva Vivienda en Ciudad QuesadaSi busca una villa moderna, espaciosa y bien ubicada, estas viviendas son la opción ideal. No pierda esta oportunidad y contáctenos hoy mismo para obtener más información o programar una visita a la casa piloto.
- hace 5 días
- 115 m2
- 6.695,65 €/m2
- 3
- 3
Medimar Eiendom
Contactar
Compartir
Tu opinión
































