Villa en venta en Rojales zona Rojales
Datos básicos
- C-12518
- 389.000 €
- 404 m2(963 €/m2)
- Alicante
- Rojales
- Rojales
Distribución e instalaciones
- 4
- 2
Certificado energético
Detalles
389.000 €
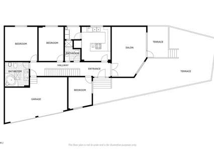
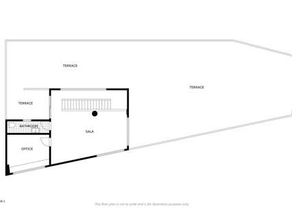
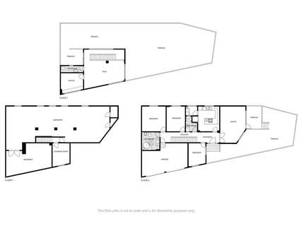
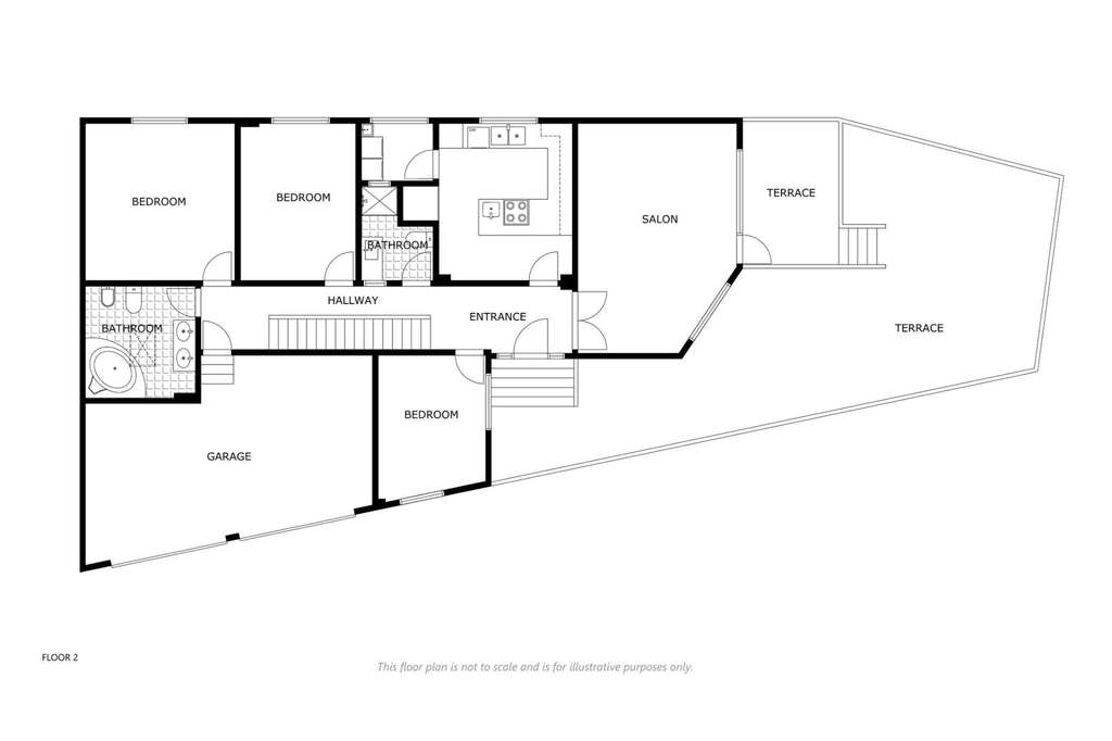
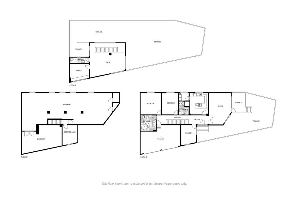
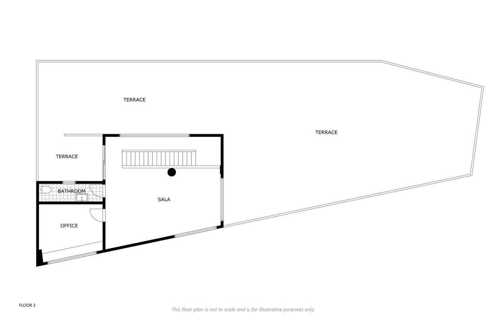
Vivienda de 404 m² con garaje, terraza y sótano en Rojales~~Una casa diferente para gente diferente.~~En pleno corazón de Rojales, junto al Malecón del Soto, encontramos esta vivienda única, pensada para quienes buscan algo más que una casa. Aquí no hay distribuciones típicas ni espacios convencionales. Aquí hay amplitud, diseño y posibilidades infinitas.~~Desde fuera, su fachada moderna y robusta ya avisa: esto no es una casa cualquiera. Al entrar, el espacio te envuelve. En la planta principal, la vida fluye entre el salón y la cocina, con luz natural inundando cada rincón. Pero la sorpresa llega cuando subimos por la escalera de diseño: un espacio diáfano de 74 m² donde puedes dejar volar la imaginación. Un salón con vistas panorámicas, un estudio de artista, una sala de lectura con el sol entrando por los ventanales… lo que tú decidas. Y desde aquí, una terraza exterior donde respirar y disfrutar del entorno.~~Pero la historia no termina aquí. En la planta baja, el garaje con doble puerta automática es solo el principio. Bajamos un nivel más y nos encontramos con un sótano de 145 m² con un sinfín de posibilidades. ¿Un gimnasio? ¿Un cine privado? ¿Un salón de juegos? ¿Un taller? Todo es posible cuando el espacio te lo permite.~~Y todo esto en una ubicación inmejorable. Rojales no solo es historia y tradición, es calidad de vida. Y esta casa, en el Malecón del Soto, te lo pone fácil. Porque vivir aquí no es solo tener una casa grande. Es tener una casa con personalidad, con carácter.~~Si buscas lo de siempre, esta no es tu casa. Pero si buscas algo diferente, algo especial, ven a verla. Te va a sorprender.
- 13/10/2025
- 404 m2
- 962,87 €/m2
- 4
- 2
Moraga Immo
Contactar
Compartir
Tu opinión









































