Villa en venta en Rojales zona Ciudad Quesada

37
Villa en venta en Rojales zona Ciudad Quesada
Datos básicos
  • NB-32155
  • 760.000
  • 245 m2(3.102 €/m2)
  • Alicante
  • Rojales
  • Ciudad Quesada
Distribución e instalaciones
  • 5
  • 3
Varios
Certificado energético
etiqueta energética
Detalles
760.000
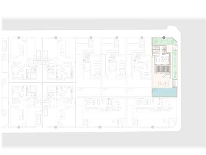
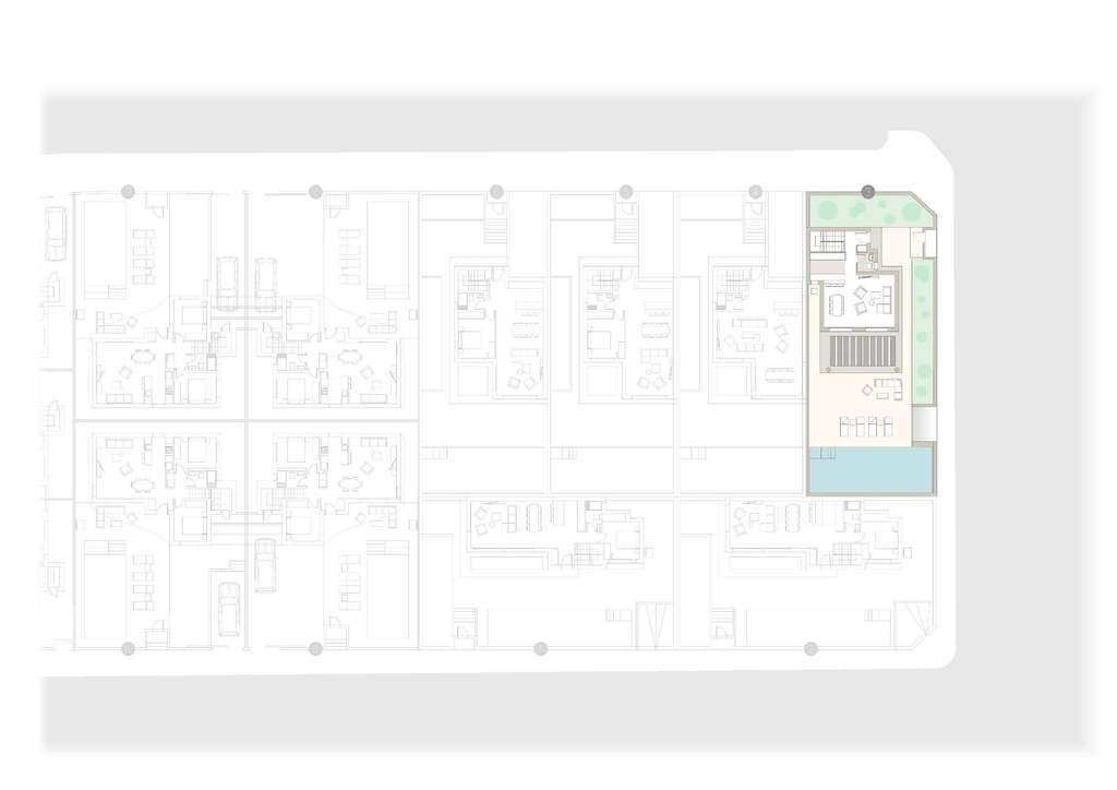
Villa de lujo contemporánea con vistas abiertas en Ciudad Quesada, Costa Blanca Diseño moderno y amplios espacios Descubra esta elegante villa moderna en Ciudad Quesada, una propiedad elegante y espaciosa diseñada para combinar lujo, comodidad y sostenibilidad. Con una superficie total de 245 m² distribuidos en tres niveles, esta villa en esquina ofrece un equilibrio perfecto entre la arquitectura contemporánea y el encanto mediterráneo. Distribución funcional con un confort excepcional La planta baja le da la bienvenida con una luminosa sala de estar y comedor de planta abierta, perfectamente conectada con la soleada terraza y una gran piscina privada de 4x10 m, ideal para recibir invitados o simplemente disfrutar del tranquilo entorno. La villa cuenta con 4 dormitorios y 3 baños, además de un aseo adicional para invitados. La suite principal ocupa toda la primera planta, ofreciendo total privacidad, un espacioso cuarto de baño en suite y una terraza privada abierta con vistas panorámicas del paisaje circundante. En la planta baja encontrará tres dormitorios, un acogedor segundo salón (que puede convertirse en un quinto dormitorio), un lavadero y un garaje cerrado. Cada espacio está diseñado para maximizar la luz natural, la privacidad y la funcionalidad, creando un hogar que se adapta perfectamente a su estilo de vida. Acabados de primera calidad y eficiencia energética Construida con los más altos estándares, esta villa incluye materiales de alta calidad y características sostenibles para el máximo confort: Cocina totalmente equipada con electrodomésticos integrados Baños con muebles, mamparas de ducha y toalleros eléctricos Aire acondicionado por conductos, totalmente instalado Paneles solares fotovoltaicos para mejorar la eficiencia energética Persianas eléctricas en el salón y los dormitorios Puerta de entrada blindada para mayor seguridad Ubicación privilegiada en Ciudad Quesada Situada en una de las zonas residenciales más exclusivas y tranquilas de la Costa Blanca, esta villa está rodeada de naturaleza y comodidades. El campo de golf La Marquesa está a solo 1 km, mientras que las playas con bandera azul de Guardamar del Segura están a solo 6 km. Las animadas ciudades de Torrevieja y Orihuela Costa están a menos de 15 minutos, y el aeropuerto internacional de Alicante se encuentra a 35 minutos (40 km). Disfrute del auténtico estilo de vida mediterráneo Ciudad Quesada es una comunidad vibrante y bien establecida, rodeada de naranjales, restaurantes, boutiques, clubes deportivos y servicios esenciales. Con sol durante todo el año, un ritmo de vida relajado y fácil acceso a campos de golf y playas, es el lugar perfecto para vivir de forma permanente, pasar las vacaciones o invertir. Póngase en contacto con nosotros hoy mismo para concertar una visita privada y comenzar su nueva vida bajo el sol mediterráneo en Ciudad Quesada.
  • hace 23 días
  • 245 m2
  • 3.102,04 €/m2
  • 5
  • 3
Contactar
Compartir
Tu opinión
×Esta web utiliza cookies técnicas, de personalización y análisis, propias y de terceros, para facilitarle la navegación de forma anónima y analizar estadísticas del uso de la web. Consideramos que si continúa navegando, acepta su uso. Más información.