Villa en venta en Rojales zona Ciudad Quesada
Datos básicos
- SP-78277
- 598.000 €
- 433 m2(1.381 €/m2)
- Alicante
- Rojales
- Ciudad Quesada
Distribución e instalaciones
- 3
- 2
Varios
- Sí
Certificado energético
- A
Detalles
598.000 €
PRECIOSA GRAN VILLA CON VISTAS AL CAMPO DE GOLF “LA MARQUESA”!
Esa preciosa villa, situada a 50 metros del campo de Golf La Marquesa, aparte de tener unas vistas despejadas y bonitas y ofrecer la tranquilidad de estar en un entorno tranquilo, está a escasos metros del centro comercial con tiendas, supermercado, bares y restaurantes internacionales. A tan solo 5 minutos del pueblo de Rojales con todos los servicios y a 15 minutos de las espectaculares playas, con bandera azul, de Guardamar del Segura. El aeropuerto Alicante-Elche está a 35 minutos.
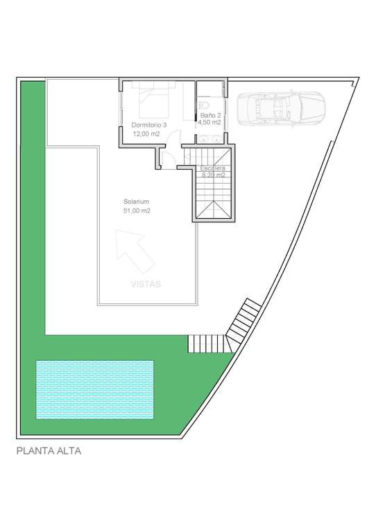
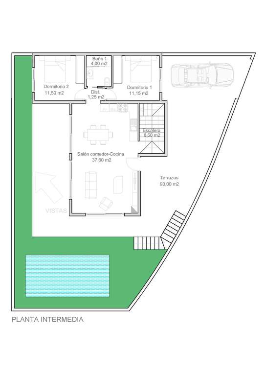
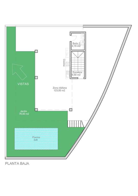
La villa cuenta con 335 m2 de superficie de parcela, 433 m2 de superficie construida, distribuidas en 3 pisos, siendo uno de ellos semisotano diafáno de 126 m2. La villa tiene 3 habitaciones y 2 baños. La piscina de 3x6 m y las amplias terrazas en la parte de jardín y piscina te permitirán disfrutar del sol y del clima de Costa Blanca durante todo el año. Además, la villa dispone de solárium y una amplia zona de parking.
Vive en una gran villa moderna, disfrutando del golf, playa, clima y estilo de vida mediterráneo!
- hace 19 días
- 433 m2
- 1.381,06 €/m2
- 3
- 2
Global Spain
Contactar
Compartir
Tu opinión




























