Villa en venta en Rojales zona 03170
Datos básicos
- MI-60749
- 995.000 €
- 280 m2(3.554 €/m2)
- Alicante
- Rojales
- 03170
Distribución e instalaciones
- 4
- 4
Varios
- Sí
Certificado energético
Detalles
995.000 €
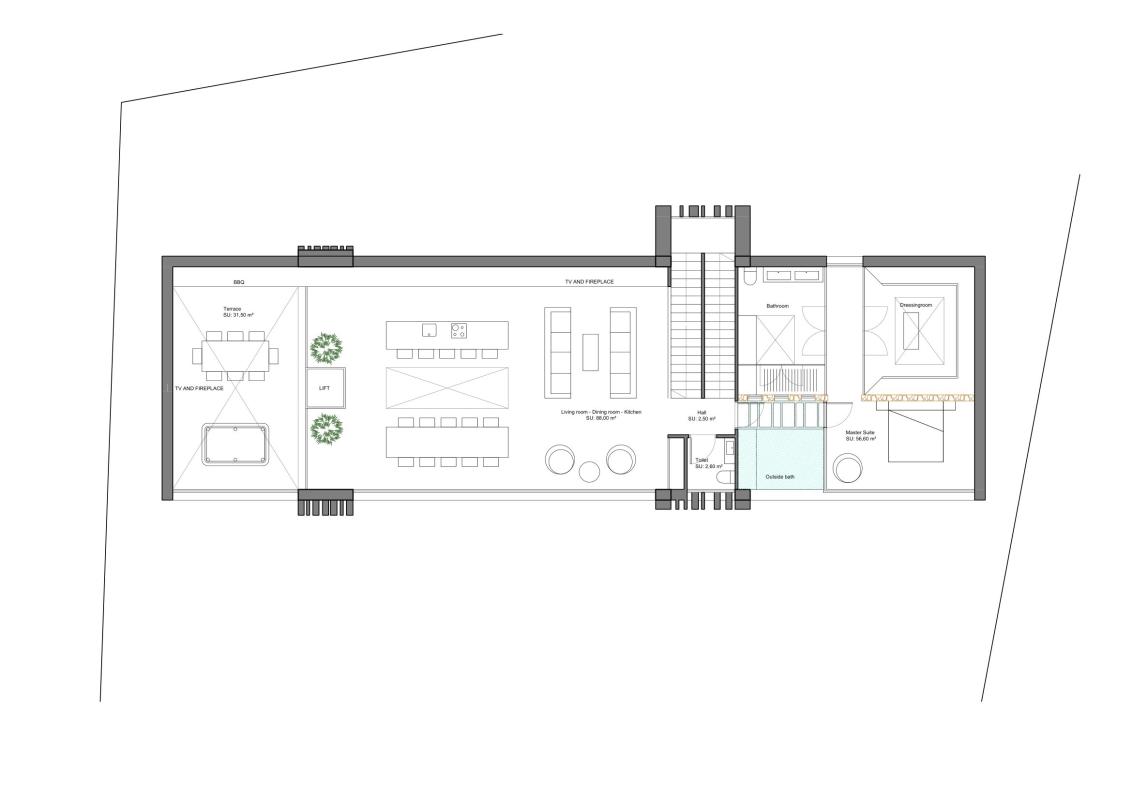
Descubre nuestras exclusivas villas de diseño en una ubicación privilegiada, con superficies que alcanzan los 280 m². Disfruta de vistas inigualables al mar y al horizonte. Las viviendas ofrecen un diseño arquitectónico de vanguardia, asegurando confort y elegancia en cada rincón.
Con un precio de 995 000 €, cada propiedad está meticulosamente diseñada para incluir 3 habitaciones, todas con lujosos baños y una impresionante terrace que ofrece panorámicas perfectas. La private-pool es solo uno de los muchos lujos que eleva tu experiencia residencial, permitiéndote disfrutar de un entorno natural único.
La planta baja es luminosa gracias al ingenioso uso del patio inglés, lo cual maximiza su uso para dormitorios adicionales, zonas de almacenamiento o espacios de ocio conforme a tus preferencias. Además, cuenta con un moderno elevator y un amplio garage para tu comodidad.
Rojales ofrece un estilo de vida lujoso con una naturaleza impresionante a poca distancia, con todas las comodidades urbanas al alcance. Este desarrollo sostenible es una muestra del compromiso con el medio ambiente sin sacrificar el lujo, presentado como una de las mejores opciones que ofrece la Costa Blanca.
Con un precio de 995 000 €, cada propiedad está meticulosamente diseñada para incluir 3 habitaciones, todas con lujosos baños y una impresionante terrace que ofrece panorámicas perfectas. La private-pool es solo uno de los muchos lujos que eleva tu experiencia residencial, permitiéndote disfrutar de un entorno natural único.
La planta baja es luminosa gracias al ingenioso uso del patio inglés, lo cual maximiza su uso para dormitorios adicionales, zonas de almacenamiento o espacios de ocio conforme a tus preferencias. Además, cuenta con un moderno elevator y un amplio garage para tu comodidad.
Rojales ofrece un estilo de vida lujoso con una naturaleza impresionante a poca distancia, con todas las comodidades urbanas al alcance. Este desarrollo sostenible es una muestra del compromiso con el medio ambiente sin sacrificar el lujo, presentado como una de las mejores opciones que ofrece la Costa Blanca.
- hace 10 días
- 280 m2
- 3.553,57 €/m2
- 4
- 4
Brillance Homes
Contactar
Compartir
Tu opinión














