Villa en venta en Rojales zona Ciudad Quesada
Datos básicos
- PS-53387
- 760.000 €
- 245 m2(3.102 €/m2)
- Alicante
- Rojales
- Ciudad Quesada
Distribución e instalaciones
- 5
- 3
Varios
- Sí
Certificado energético
- B
Detalles
760.000 €
Villa de lujo contemporánea con vistas abiertas en Ciudad Quesada, Costa Blanca
Diseño moderno y amplios espacios
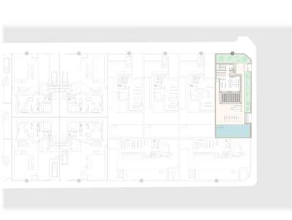
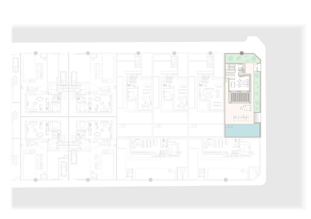
Descubra esta elegante villa moderna en Ciudad Quesada, una propiedad elegante y espaciosa diseñada para combinar lujo, comodidad y sostenibilidad. Con una superficie total de 245 m² distribuidos en tres niveles, esta villa en esquina ofrece un equilibrio perfecto entre la arquitectura contemporánea y el encanto mediterráneo.
Distribución funcional con un confort excepcional
La planta baja le da la bienvenida con una luminosa sala de estar y comedor de planta abierta, perfectamente conectada con la soleada terraza y una gran piscina privada de 4x10 m, ideal para recibir invitados o simplemente disfrutar del tranquilo entorno.
La villa cuenta con 4 dormitorios y 3 baños, además de un aseo adicional para invitados. La suite principal ocupa toda la primera planta, ofreciendo total privacidad, un espacioso cuarto de baño en suite y una terraza privada abierta con vistas panorámicas del paisaje circundante.
En la planta baja encontrará tres dormitorios, un acogedor segundo salón (que puede convertirse en un quinto dormitorio), un lavadero y un garaje cerrado.
Cada espacio está diseñado para maximizar la luz natural, la privacidad y la funcionalidad, creando un hogar que se adapta perfectamente a su estilo de vida.
Acabados de primera calidad y eficiencia energética
Construida con los más altos estándares, esta villa incluye materiales de alta calidad y características sostenibles para el máximo confort:
Cocina totalmente equipada con electrodomésticos integrados
Baños con muebles, mamparas de ducha y toalleros eléctricos
Aire acondicionado por conductos, totalmente instalado
Paneles solares fotovoltaicos para mejorar la eficiencia energética
Persianas eléctricas en el salón y los dormitorios
Puerta de entrada blindada para mayor seguridad
Ubicación privilegiada en Ciudad Quesada
Situada en una de las zonas residenciales más exclusivas y tranquilas de la Costa Blanca, esta villa está rodeada de naturaleza y comodidades. El campo de golf La Marquesa está a solo 1 km, mientras que las playas con bandera azul de Guardamar del Segura están a solo 6 km. Las animadas ciudades de Torrevieja y Orihuela Costa están a menos de 15 minutos, y el aeropuerto internacional de Alicante se encuentra a 35 minutos (40 km).
Disfrute del auténtico estilo de vida mediterráneo
Ciudad Quesada es una comunidad vibrante y bien establecida, rodeada de naranjales, restaurantes, boutiques, clubes deportivos y servicios esenciales. Con sol durante todo el año, un ritmo de vida relajado y fácil acceso a campos de golf y playas, es el lugar perfecto para vivir de forma permanente, pasar las vacaciones o invertir.
Póngase en contacto con nosotros hoy mismo para concertar una visita privada y comenzar su nueva vida bajo el sol mediterráneo en Ciudad Quesada.
- hace 4 días
- 245 m2
- 3.102,04 €/m2
- 5
- 3
Global Spain
Contactar
Compartir
Tu opinión





































