Villa en venta en Rojales zona Ciudad Quesada
Datos básicos
- GSR-89125
- 699.000 €
- 153 m2(4.569 €/m2)
- Alicante
- Rojales
- Ciudad Quesada
Distribución e instalaciones
- 4
- 3
Varios
- Sí
Certificado energético
Detalles
699.000 €
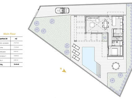
Hermosa villa orientada al sur con vistas panorámicas y piscina privada en Ciudad Quesada UbicaciónEsta impresionante villa está situada en una zona tranquila y muy solicitada deCiudad Quesada. A pesar de su entorno apacible, elanimado centro urbanose encuentra a solo500 metros a pie.Laplaya de Guardamarestá a tan solo8 km, y elcampo de golf La Marquesase encuentra a3 km— perfecta para quienes disfrutan del sol, el mar y el golf en la Costa Blanca.La villa estáorientada al sur, lo que le permite disfrutar del sol durante todo el día, incluso en los meses de invierno.DistribuciónConstruida en2020, esta villa ha sidocuidadosamente mantenida.Ofrececuatro amplios dormitoriosytres baños (con calefacción por suelo radiante), distribuidos en tres plantas.Planta baja:Cocina moderna de concepto abierto con electrodomésticos de alta calidad Luminoso y acogedor salón con grandes ventanales y mucha luz natural Lavadero independiente con lavadora, caldera y espacio de almacenamiento Baño completo y dormitorio amplio con acceso directo al jardínPrimera planta:Dormitorio principal conbaño en suiteyvestidor Dormitorio de invitados conbalcón orientado al sur Baño adicional para invitadosSegunda planta:Cuarto dormitorio, actualmente utilizado como oficina Dos ampliasterrazas soláriumconvistas panorámicasde los alrededores, laslagunas saladas de La Mata y Torrevieja, e incluso una ligera vista al mar Zona exteriorLa villa cuenta con unapiscina privada (sistema de agua salada), ideal para relajarse y disfrutar en los días soleados.También dispone deamplio espacio de aparcamiento en la parcela privada para varios coches.El jardín esde bajo mantenimientoy ofreceprivacidad y sol durante todo el día.Gracias a suorientación sur, podrá disfrutar del clima mediterráneo durante todo el año, ideal para estancias en invierno.Las diversas terrazas alrededor de la casa invitan a disfrutar plenamente del estilo de vida al aire libre.Características principales Construida en2020 Calefacción por suelo radiante en los baños Piscina privada(sistema de agua salada) Orientación sur– sol todo el día, incluso en invierno Paneles solares– eficiente y sostenible Aparcamiento privadopara varios vehículos Vistas panorámicasa las lagunas saladas y los alrededores A solo8 km de la playay3 km del campo de golf La Marquesa ResumenUnavilla moderna y lista para entrar a vivir, situada en una excelente ubicación, que ofrecelujo, comodidad y estilo.Con supiscina privada,orientación sur,vistas panorámicasyproximidad a la playa y al golf, esta propiedad es ideal para quienes buscan unacasa de ensueño en la Costa Blanca.
- hace 4 días
- 153 m2
- 4.568,63 €/m2
- 4
- 3
Global Spain
Contactar
Compartir
Tu opinión








































