Villa en venta en Rojales zona Altos De La Marquesa
Datos básicos
- SP-19498
- 995.000 €
- 280 m2(3.554 €/m2)
- Alicante
- Rojales
- Altos De La Marquesa
Distribución e instalaciones
- 4
- 4
Varios
- Sí
Certificado energético
- B
Detalles
995.000 €
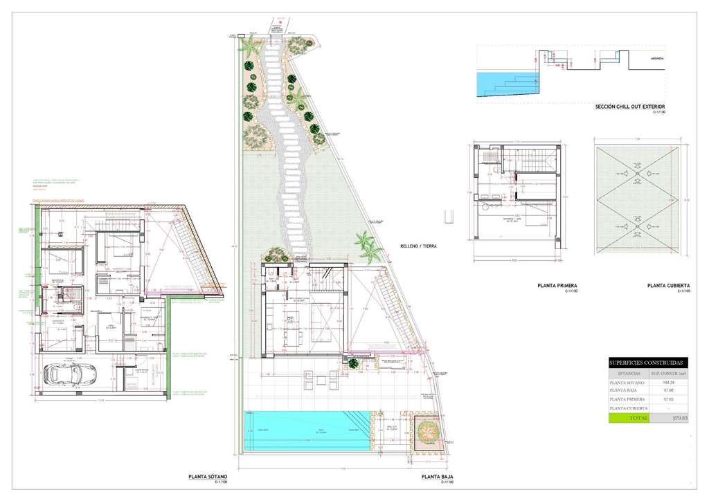
VILLA DE DISEÑO JUNTO AL MAR
Villa de diseño con una superficie total de 250 metros cuadrados con vistas a Guardamar y al mar.
Tiene 3 habitaciones con baño privado y con terrazas con vistas a la Sierra del Recorral. Desde la piscina infinity puedes disfrutar de las hermosas vistas y el entorno natural de Rojales. La luz natural en la planta baja gracias al patio inglés, asegura que también puedas maximizar el uso de este espacio para dormitorios adicionales, espacios de almacenamiento o para la zona de ocio que siempre has soñado tener.
Las villas exclusivas y sostenibles del Residencial están diseñadas para disfrutar plenamente de las magníficas vistas hacia el horizonte de Guardamar. Una combinación de vistas al mar, naturaleza y el lujoso estilo de vida a poca distancia de Ciudad Quesada y Rojales con todas las comodidades a mano.
Su diseño sostenible, sus acabados de alta calidad y su localización única hacen que este residencial sea una de las mejores promociones que ofrece la Costa Blanca.
- hace 7 horas
- 280 m2
- 3.553,57 €/m2
- 4
- 4
Global Spain
Contactar
Compartir
Tu opinión































