Villa en venta en San Fulgencio zona El Oasis
Datos básicos
- NB-99563
- 800.000 €
- 247 m2(3.239 €/m2)
- Alicante
- San Fulgencio
- El Oasis
Distribución e instalaciones
- 3
- 3
Varios
- Sí
Certificado energético
Detalles
800.000 €
VILLAS DE OBRA NUEVA EN SAN FULGENCIO
Residencial de obra nueva de 3 villas modernas en San Fulgencio.
Villas construidas sobre parcelas de 500 m2 y situadas en zona residencial con todos los servicios a un paso y a corta distancia del mejor centro SPA y Parque Acuático de la zona.
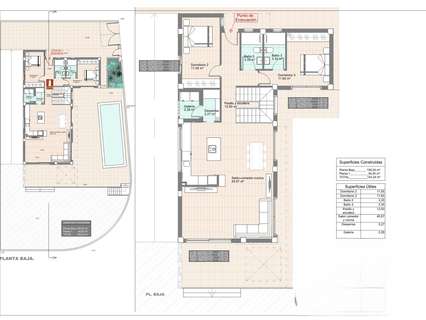
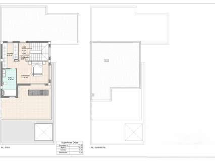
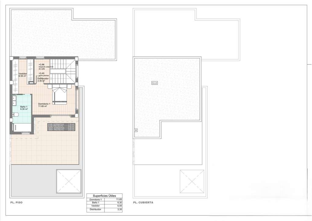
Las villas se distribuyen en 2 plantas y disponen de 3 dormitorios, 3 baños, cocina americana con salón, armarios empotrados, terrazas, jardín privado con piscina y plaza de aparcamiento. Posibilidad de solarium en azotea con coste extra.
San Fulgencio es un pueblo agradable con varios restaurantes y tiendas y la ubicación es muy buena con su proximidad a las fantásticas playas de La Marina y la ciudad un poco más grande de Guardamar.
El pueblo de San Fulgencio está situado a unos 30 minutos del aeropuerto de Alicante-Elche, a 6 km del campo de golf más cercano y a sólo 7 km de la playa más cercana.
- 30/10/2025
- 247 m2
- 3.238,87 €/m2
- 3
- 3
Buy in Spain
Contactar
Compartir
Tu opinión











