Villa en venta en San Miguel de Salinas
Datos básicos
- PXOL-T635
- 1.165.000 €
- 338 m2(3.447 €/m2)
- Alicante
- San Miguel de Salinas
Distribución e instalaciones
- 3
- 2
- 1
Varios
- 699 m2
- Sí
Certificado energético
Detalles
1.165.000 €
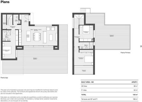
¡Bienvenido al Hogar de Tus Sueños en Las Colinas Golf!~~¿Buscas una vivienda de alta calidad en un entorno seguro y tranquilo? ¡Estás en el lugar correcto! Disfruta de la vida rodeado de zonas verdes y pinos que purifican el aire, con impresionantes vistas al mar y acceso a increíbles playas en Las Colinas Golf.~~Esta villa pertenece a la comunidad más exclusiva, diseñada con los más altos estándares de calidad, exclusividad y elegancia.~~Detalles de la Propiedad:~dispone de una parcela de 699 m2 y de 150 m2 de superficie construida de vivienda, dos plantas, amplias terrazas, un gran jardín y una piscina privada.~~Cuenta con tres dormitorios, dos baños con uno de ellos en suite, un aseo, cocina americana totalmente equipada junto al salón-comedor y dos plazas de aparcamiento en garaje privado.~~El diseño de esta vivienda presenta una arquitectura de estilo contemporáneo, de líneas rectas y sencillas, y cuya vida se abre al exterior dotando de amplitud y funcionalidad cada una de las estancias de la vivienda.~~La villa se integra con la arbolada de bosque mediterráneo a través espectaculares terrazas ajardinadas y amplios ventanales que funden el interior de la vivienda con su entorno natural.~~Además, su orientación sur contribuye a una mayor radiación solar por las tardes en los meses de invierno.~~Beneficios de la Comunidad:~Seguridad 24/7: Para tu tranquilidad y paz mental.~Vistas impresionantes al mar: Paisajes que te dejarán sin aliento.~Acceso a instalaciones premium: Golf paradisíaco, piscinas, gimnasio, spa, pistas de tenis, zonas infantiles, cargador para coches eléctricos, áreas de entrenamiento, centro de reuniones, Amazon Locker, senderos paisajísticos, campo de prácticas, Short Game Area, Rambla Mediterránea, circuito de mountain bike, y mucho más para disfrutar tu tiempo libre.~Exclusividad y Elegancia~~No pierdas la oportunidad de descubrir este paraíso en Las Colinas Golf. Contáctanos hoy mismo para más información y comienza a vivir la vida que siempre has soñado. ¡Bienvenido a tu nuevo hogar en Las Colinas Golf! Especialistas en Orihuela Costa
- 5/11/2025
- 338 m2
- 3.446,75 €/m2
- 3
- 2
- 699 m2
Características
Aire acondicionado | Alarma | Zona barbacoa
ArKadia Publishing Ltd 3
Contactar
Compartir
Tu opinión
Mapa

























