Apartamento en venta en Teulada zona Moraira
Datos básicos
- AMB-23330
- 795.000 €
- 110 m2(7.227 €/m2)
- Alicante
- Teulada
- Moraira
Distribución e instalaciones
- 4
- 1
Certificado energético
Detalles
795.000 €
Apartamento único en primera línea, junto al centro de Moraira con impresionantes vistas al mar.
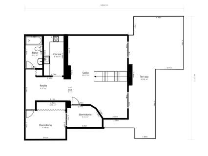
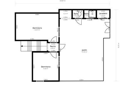
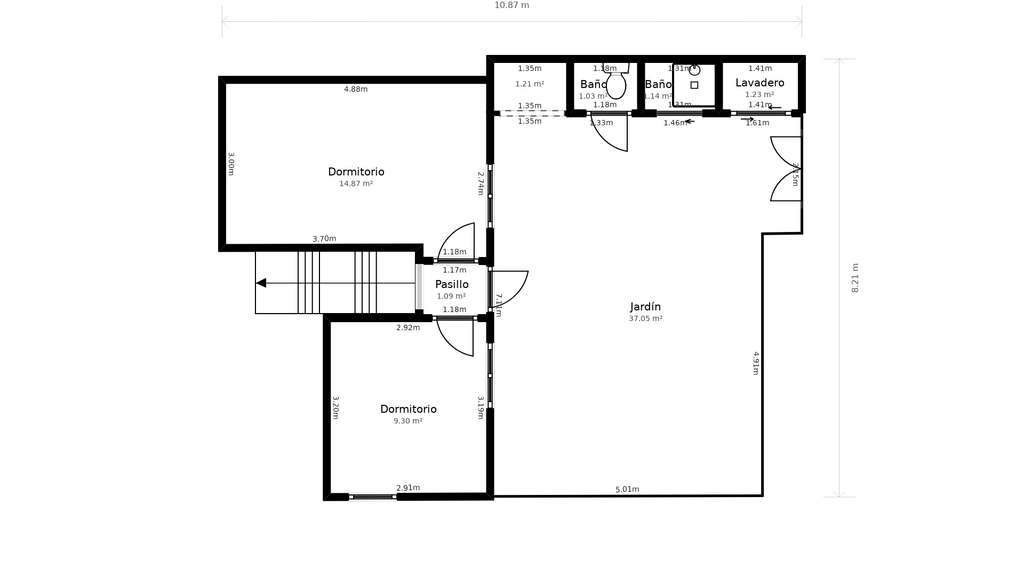
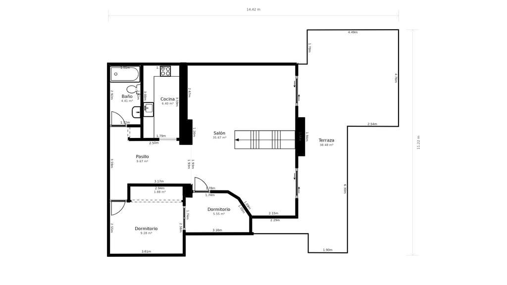
¿Ha soñado con un apartamento con una amplia terraza y vistas panorámicas al mar y al Peñón de Ifach, entonces ¡esta es tu oportunidad!.El apartamento consta de dos plantas conectadas por una escalera interior, a la que se puede entrar desde el nivel de la calle o directamente por la planta principal. La escalera exterior comunitaria conduce a la puerta de entrada que da acceso a una espaciosa terraza privada e inmediatamente se sentirá abrumado por el agua turquesa del mar Mediterráneo y las impresionantes y amplias vistas ¡justo delante de usted! Aquí podrá disfrutar del sol durante todo el día y ver pasar los barcos. Grandes ventanales se abren al luminoso salón-comedor de estilo ibicenco antiguo con suelos de terracota. Más adelante en este nivel encontrará una primera habitación más pequeña o despacho, cocina independiente, un cuarto de baño con bañera y un dormitorio doble con armario empotrado.En la planta baja se encuentran 2 dormitorios más y acceso al Patio con mucho potencial. Aquí puede crear su propio oasis privado con plantas, etc. o convertirlo en una plaza de aparcamiento. Por último, también hay un aseo separado, una ducha exterior y un lavadero con caldera. También es posible utilizar la planta baja para locales comerciales.Este apartamento está en una ubicación única y podría convertirse en una auténtica joya después de una reforma.
CARACTERÍSTICAS PRINCIPALES:
Apartamento en primera línea de mar al borde del centro de Moraira y de la playaOrientación SurLa planta baja también se puede utilizar para locales comercialesUbicación única, pero necesita una reforma completa
¡Reserve una visita para ver este apartamento con esta ubicación tan especial!
¿Ha soñado con un apartamento con una amplia terraza y vistas panorámicas al mar y al Peñón de Ifach, entonces ¡esta es tu oportunidad!.El apartamento consta de dos plantas conectadas por una escalera interior, a la que se puede entrar desde el nivel de la calle o directamente por la planta principal. La escalera exterior comunitaria conduce a la puerta de entrada que da acceso a una espaciosa terraza privada e inmediatamente se sentirá abrumado por el agua turquesa del mar Mediterráneo y las impresionantes y amplias vistas ¡justo delante de usted! Aquí podrá disfrutar del sol durante todo el día y ver pasar los barcos. Grandes ventanales se abren al luminoso salón-comedor de estilo ibicenco antiguo con suelos de terracota. Más adelante en este nivel encontrará una primera habitación más pequeña o despacho, cocina independiente, un cuarto de baño con bañera y un dormitorio doble con armario empotrado.En la planta baja se encuentran 2 dormitorios más y acceso al Patio con mucho potencial. Aquí puede crear su propio oasis privado con plantas, etc. o convertirlo en una plaza de aparcamiento. Por último, también hay un aseo separado, una ducha exterior y un lavadero con caldera. También es posible utilizar la planta baja para locales comerciales.Este apartamento está en una ubicación única y podría convertirse en una auténtica joya después de una reforma.
CARACTERÍSTICAS PRINCIPALES:
Apartamento en primera línea de mar al borde del centro de Moraira y de la playaOrientación SurLa planta baja también se puede utilizar para locales comercialesUbicación única, pero necesita una reforma completa
¡Reserve una visita para ver este apartamento con esta ubicación tan especial!
- 14/10/2025
- 110 m2
- 7.227,27 €/m2
- 4
- 1
Rayos de Sol
Contactar
Compartir
Tu opinión
































