Villa en venta en Teulada zona Moraira
Datos básicos
- CH3324
- 1.175.000 €
- Alicante
- Teulada
- Moraira
Distribución e instalaciones
- 4
- 3
Varios
- Sí
Certificado energético
Detalles
1.175.000 €
Moderna villa de lujo, recién construida, en la exclusiva zona de El Portet, a 400 m de la playa y servicios. Está construida en una parcela llana de 465 m2 con buenas vistas abiertas y al mar. Sitio tranquilo, en calle sin salida. Orientada al sur.
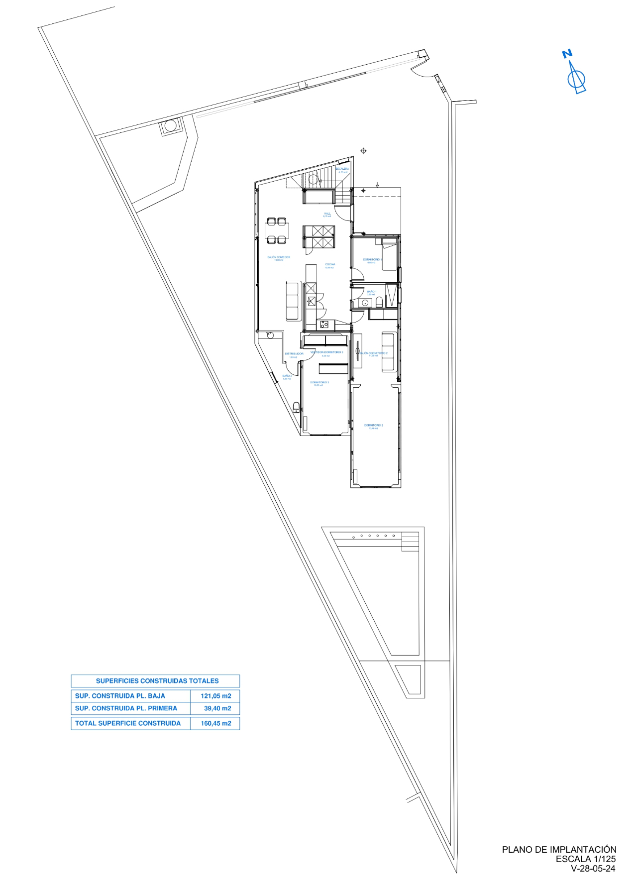
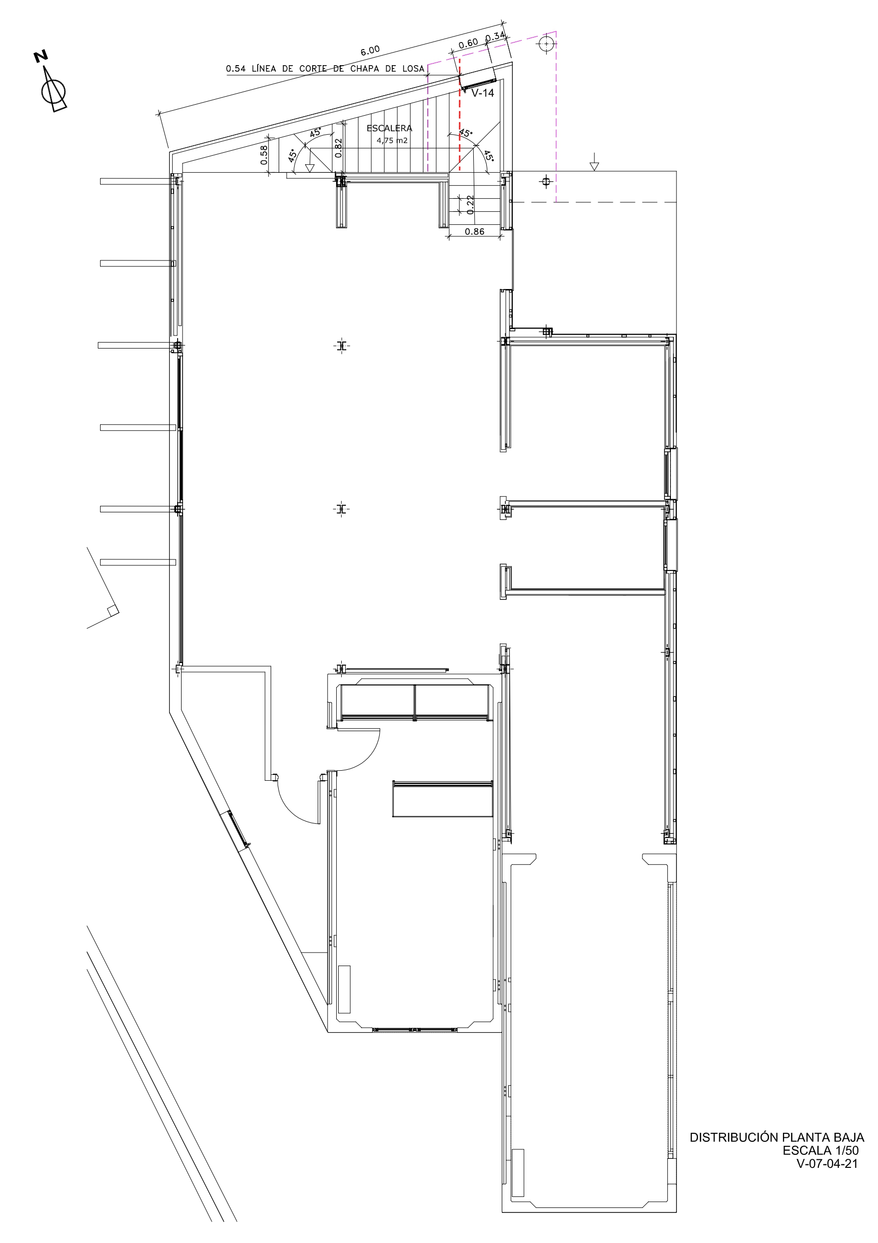
La casa tiene 2 plantas comunicadas interiormente. La planta baja consta de: hall de entrada, cocina con barra abierta al salón-comedor, 3dormitorios, uno simple, otro doble con salón y el tercero doble con terraza y2aseos con ducha.
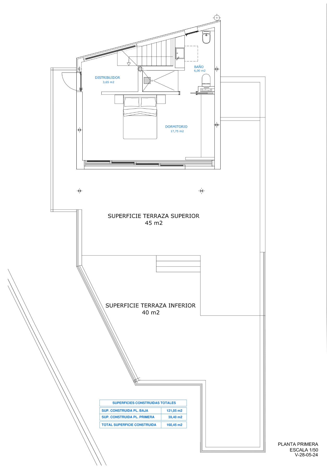
La planta alta consta de: dormitorio principal con salida a terraza yen-suite aseocon ducha. La terraza está preparada para pérgola bioclimática. Ventanas de aluminio con cristal doble. Persianas eléctricas. Aire acondicionado (frío-calor) por conductos con sistema aerotermia.Placas solarespara agua caliente. Interfono. Puerta entrada parcela automática.
La piscina tiene una forma irregular quese adapta a la parcela. Jardín con riego agoteo. Depósito de agua de 12.000 l. Depuradora de oxidación total. Parking dentro de la parcela.
La casa tiene 2 plantas comunicadas interiormente. La planta baja consta de: hall de entrada, cocina con barra abierta al salón-comedor, 3dormitorios, uno simple, otro doble con salón y el tercero doble con terraza y2aseos con ducha.
La planta alta consta de: dormitorio principal con salida a terraza yen-suite aseocon ducha. La terraza está preparada para pérgola bioclimática. Ventanas de aluminio con cristal doble. Persianas eléctricas. Aire acondicionado (frío-calor) por conductos con sistema aerotermia.Placas solarespara agua caliente. Interfono. Puerta entrada parcela automática.
La piscina tiene una forma irregular quese adapta a la parcela. Jardín con riego agoteo. Depósito de agua de 12.000 l. Depuradora de oxidación total. Parking dentro de la parcela.
- 14/07/2024
- 4
- 3
Ferrando
Contactar
Compartir
Tu opinión

















































