Villa en venta en Teulada zona Moraira
Datos básicos
- M-44805
- 1.795.000 €
- 34.600 m2(52 €/m2)
- Alicante
- Teulada
- Moraira
Distribución e instalaciones
- 4
- 4
Varios
- Sí
Certificado energético
Detalles
1.795.000 €
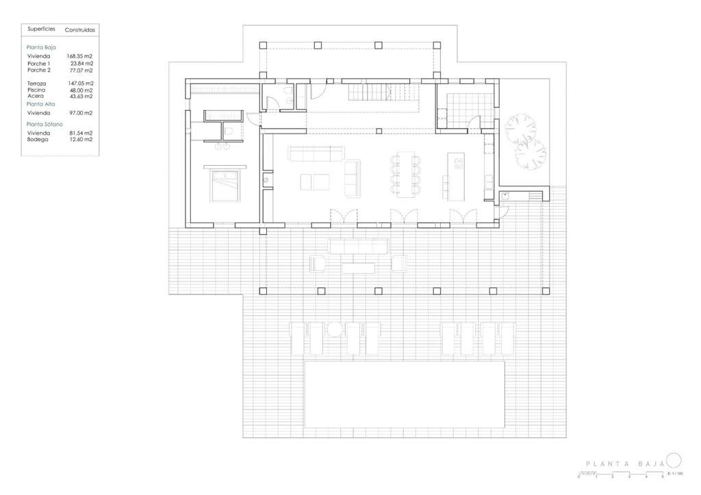
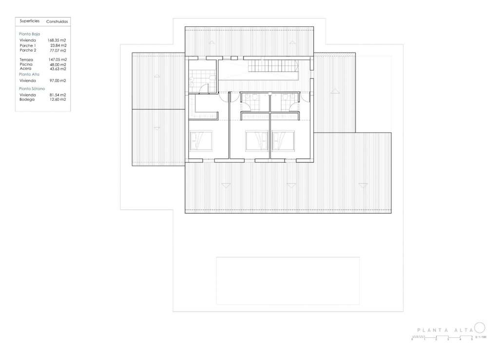
VILLA DE OBRA NUEVA EN MORAIRA CON VISTAS AL MAR Villa de nueva construcción en Moraira con piscina privada y vistas al mar. En la planta baja encontramos un amplio salón-comedor y cocina abierta, dormitorio principal con armario empotrado y baño, terraza delantera con acceso a la piscina. En la primera planta hay 3 dormitorios con armarios empotrados, 3 baños en suite. Además aquí tiene sótano de 81m2 con bodega. La villa se construirá con materiales de alta calidad. La cocina será elegida por el cliente, armarios de cocina, encimera y electrodomésticos. Aire acondicionado con sistema de climatización (condensado) en los salones y dormitorios. Marca Mitsubishi. La piscina se construirá con una ducha exterior ducha exterior (conexión de agua caliente/fría). Puerta de entrada automática para los coches con mando a distancia y puerta peatonal automática. Jardín a elegir por el cliente. Moraira es un pequeño pueblo con buenos restaurantes, bares y muchos supermercados alrededor. Hay una playa muy agradable justo al lado del pueblo que es ideal para las familias. El paseo marítimo ofrece unas vistas tremendas del Peñón de Ifach al otro lado de la bahía de Calpe. El camino de la costa de llegar allí es bien vale la pena hacer con algunas vistas espectaculares. Moraira situado a 1 hora 15 minutos al norte de la A7 desde el aeropuerto de Alicante es bastante fácil de llegar. Es aproximadamente la misma distancia o un poco menos al sur del aeropuerto de Valencia.
- 13/10/2025
- 34.600 m2
- 51,88 €/m2
- 4
- 4
Medimar Eiendom
Contactar
Compartir
Tu opinión








