Villa en venta en Teulada zona Moraira
Datos básicos
- IA-77384
- 1.679.000 €
- 541 m2(3.104 €/m2)
- Alicante
- Teulada
- Moraira
Distribución e instalaciones
- 4
- 4
Varios
- Sí
Certificado energético
Detalles
1.679.000 €
Ubicada en la prestigiosa área de Teulada-Moraira, esta casa es una impresionante residencia de estilo ibicenco que combina la elegancia mediterránea con un diseño moderno y sofisticado. Esta excepcional vivienda se asienta en una parcela de más de 800 m², proporcionando un entorno espacioso y acogedor ideal para disfrutar de la Costa Blanca.
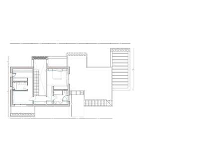
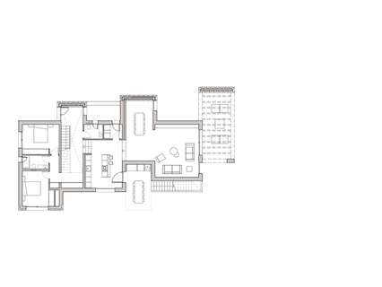
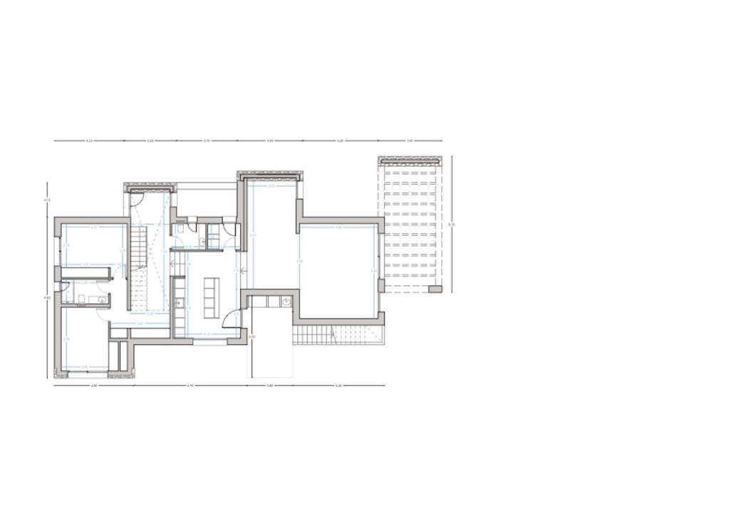
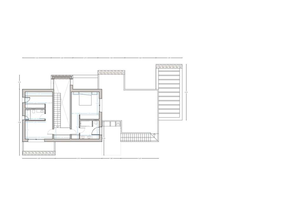
Con una superficie construida de 541,16 m² y un jardín de 389,56 m², esta casa está diseñada para maximizar el confort y la funcionalidad. Al entrar, el vestíbulo da paso a un amplio salón-comedor con cocina integrada, creando un espacio abierto y luminoso perfecto para la vida familiar y el entretenimiento. Desde aquí, se accede directamente a la terraza y a la zona de la piscina, ideal para disfrutar del clima mediterráneo.
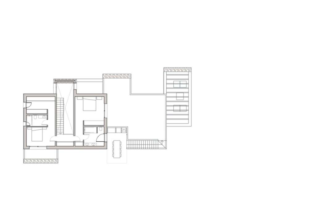
La planta baja cuenta con cuatro dormitorios, cada uno con su propio baño, proporcionando privacidad y comodidad. Además, hay un lavadero, un aseo y un distribuidor que conecta todas las áreas de la casa de manera funcional. La casa también incluye una pérgola para aparcamiento y amplias terrazas que rodean la piscina de 30,53 m², creando diferentes ambientes para relajarse o recibir invitados.
Los exteriores incluyen varias terrazas con vistas panorámicas y diferentes espacios para disfrutar del aire libre. La piscina, acompañada por una terraza para barbacoa y pérgolas, crea el escenario perfecto para las noches de verano. El jardín añade un toque de naturaleza y tranquilidad, haciendo de esta propiedad un verdadero oasis.
Diseñada para ofrecer el máximo lujo y confort, es perfecta para quienes buscan una residencia exclusiva en una ubicación privilegiada. No pierda la oportunidad de vivir en uno de los lugares más bellos de la Costa Blanca. Para más información o para programar una visita, no dude en ponerse en contacto con nosotros. Estamos aquí para ayudarle a encontrar la casa de sus sueños.
Con una superficie construida de 541,16 m² y un jardín de 389,56 m², esta casa está diseñada para maximizar el confort y la funcionalidad. Al entrar, el vestíbulo da paso a un amplio salón-comedor con cocina integrada, creando un espacio abierto y luminoso perfecto para la vida familiar y el entretenimiento. Desde aquí, se accede directamente a la terraza y a la zona de la piscina, ideal para disfrutar del clima mediterráneo.
La planta baja cuenta con cuatro dormitorios, cada uno con su propio baño, proporcionando privacidad y comodidad. Además, hay un lavadero, un aseo y un distribuidor que conecta todas las áreas de la casa de manera funcional. La casa también incluye una pérgola para aparcamiento y amplias terrazas que rodean la piscina de 30,53 m², creando diferentes ambientes para relajarse o recibir invitados.
Los exteriores incluyen varias terrazas con vistas panorámicas y diferentes espacios para disfrutar del aire libre. La piscina, acompañada por una terraza para barbacoa y pérgolas, crea el escenario perfecto para las noches de verano. El jardín añade un toque de naturaleza y tranquilidad, haciendo de esta propiedad un verdadero oasis.
Diseñada para ofrecer el máximo lujo y confort, es perfecta para quienes buscan una residencia exclusiva en una ubicación privilegiada. No pierda la oportunidad de vivir en uno de los lugares más bellos de la Costa Blanca. Para más información o para programar una visita, no dude en ponerse en contacto con nosotros. Estamos aquí para ayudarle a encontrar la casa de sus sueños.
- 14/10/2025
- 541 m2
- 3.103,51 €/m2
- 4
- 4
Immo Toro
Contactar
Compartir
Tu opinión
















